Продається будинок Київська, Києво-Святошинський, Гореничі, Київська (№ 22-421-572)
Ціна: 177 000 $

Характеристики
| Ціна: | 177 000 $ |
|---|---|
| № об'єкта: | 22-421-572 |
| Тип: | будинок |
| Поверхів: | 2 |
| Спалень: | 4 |
| Площа будинку: | 145 м2 |
| Ділянка: | 5 сот |
Адреса: Київська, Києво-Святошинський, Гореничі, Київська
№ 22-421-572
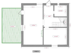
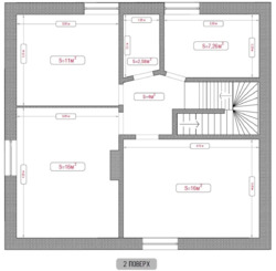
Пропунуємо на продаж двоповерховий будинок в с.Гореничі, Київська область.
Площа будинку: 145 м²
Ділянка: 5 соток
Вулиця Київська, 15 км до метро “Житомирська”
Переваги будинку:
- Бомбосховище з залізобетонним перекриттям (25 см)
- Грубка-камін — тепло навіть без світла
- 4 спальні + кухня-вітальня з виходом на терасу
- Стрічковий армований фундамент
- Побудовано з газоблоку (40 см) + утеплення 50 мм
- Металочерепиця, утеплення даху 200мм
- Тепла підлога + електрокотел
- 2 санвузли
- Паркінг під навісом на 2+ авто
-Автоматичні ворота
- Свердловина 45 м + переливний септик на 10 кубів
-Електрика 10 кВт, трифазний лічильник (день/ніч)
Інфраструктура
– Асфальт до будинку
– Поруч ліс
– Супермаркети: Сільпо, АТБ, Фора, Мегамаркет
– Школи, дитсадки
Агентство нерухомості 'Житломанія'
Працюючи з нами, ви отримуєте перевірене житло від реальних продавців, та підтримку на всіх етапах угоди.
Звяжіться з нами для організації перегляду та додаткової інформації.
Комісія за послуги 4% за фактом підписання угоди.













