Здається квартира Романа Мстиславича Князя (Жмаченко), 22, Київ, Дніпровський (№ 112-025-630)
Ціна: 32 000 грн.

Адреса: Романа Мстиславича Князя (Жмаченко), 22, Київ, Дніпровський
Характеристики
| Ціна: | 32 000 грн. |
|---|---|
| № об'єкта: | 112-025-630 |
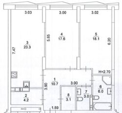
| Кімнат: | 3 |
| Поверх: | 11 / 18 |
| Площа: | 86 / - / 23 м2 |
Опис
ОІ № 112-025-630 Пропонуємо в довгострокову оренду 3-кімнатну квартиру у ЖК «Новий Автограф», за адресою: вул.Романа Мстиславича Князя (Жмаченко) буд. 22.
яка розташована на 11- поверсі 18-поверхового будинку.
ОЗДОБЛЕННЯ квартири:
- індивідуальне опалення (електро котел);
-Інверторні кондиціонери для кондиціонування/опалення;
-Тепла Електрична підлога кухня та ванна кімната;
- вся нова техніка BOSCH;
-оптичний GPON інтернет
Друга кімната доукомплектовується в залежності від потреб Орендаря.
Не виходячи з будинку є доступ до підземного паркінгу будинку, який може використовуватись як УКРИТТЯ.
Квартира затишна, простора, повністю укомплектована меблями та технікою для комфортного життя!
Зручна транспортна розв`язка, що дозволить швидко дістатись у будь-який куточок міста. Вся інфраструктура в пішій доступності.
Агентство нерухомості 'Житломанія'
Працюючи з нами, ви отримуєте перевірене житло від реальних орендодавців, та підтримку на всіх етапах угоди.
Звяжіться з нами для організації перегляду та додаткової інформації.
Комісійні послуги 50% від суми оренди за фактом підписання договору.

























