Здається квартира Феодосійський провулок, 14-А, Київ, Голосіївський, м. Деміївська (№ 112-034-208)
Ціна: 23 000 грн.

Адреса: Феодосійський провулок, 14-А, Київ, Голосіївський, м. Деміївська
Характеристики
| Ціна: | 23 000 грн. |
|---|---|
| № об'єкта: | 112-034-208 |
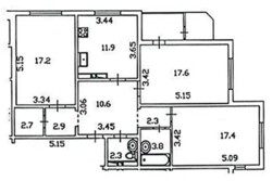
| Кімнат: | 3 |
| Поверх: | 18 / 22 |
| Площа: | 87 / - / 50 м2 |
| Санвузол: | 1 роздільний |
| Балкон: | балкон |
Опис
МП112-034-208
Пропонуємо в довгострокову оренду 3 кімнатну квартиру за адресою: Феодосійський провулок,14-А , яка розташована на 18 поверсі 22 поверхового будинку.
Квартира затишна, простора, повністю укомплектована меблями та технікою для комфортного життя!
Зручна транспортна розв`язка, що дозволить швидко дістатись у будь-який куточок міста. Вся інфраструктура в пішій доступності.
Тихий та затишний двір, зони для відпочинку та паркування.
Агентство нерухомості 'Житломанія'
Працюючи з нами, ви отримуєте перевірене житло від реальних орендодавців, та підтримку на всіх етапах угоди.
Зв’яжіться з нами для організації перегляду та додаткової інформації.
Комісійні послуги 50% від суми оренди за фактом підписання договору.


















