Продається квартира Київ, Дарницький, Камʼянська, 128, м. Вирлиця (№ 212-986-436)

Ціна: 110 000 $
Характеристики
Ціна: | 110 000 $ |
---|---|
№ об'єкта: | 212-986-436 |
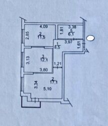
Кімнат: | 2 |
Поверх: | 26 / 26 |
Площа: | 56 / - / 11 м2 |
Санвузол: | 1 сумісний |
Балкон: | балкон |
Адреса: Київ, Дарницький, Камʼянська, 128, м. Вирлиця
212-986-436
Пропонуємо в продаж 2 кімнатну квартиру в комфортному та безпечному ЖК Метрополія, за адресою: вул.Камʼянська, 128, яка розташована на 26 поверсі 26 поверхового будинку.
Квартира затишна, простора, повністю укомплектована меблями та технікою для комфортного життя!
Зручна транспортна розв`язка, що дозволить швидко дістатись у будь-який куточок міста. Вся інфраструктура в пішій доступності.
Тихий та затишний двір, зони для відпочинку та паркування.
Агентство нерухомості 'Житломанія'
Працюючи з нами, ви отримуєте перевірене житло від реальних орендодавців, та підтримку на всіх етапах угоди.
Зв’яжіться з нами для організації перегляду та додаткової інформації.
Комісійні послуги 4 % від суми продажу за фактом підписання договору.