Продається квартира Київ, Подільський, вул. Віктора Некрасова, 12А (№ 212-988-252)

Ціна: 95 000 $
Характеристики
Ціна: | 95 000 $ |
---|---|
№ об'єкта: | 212-988-252 |
Кімнат: | 3 |
Поверх: | 16 / 26 |
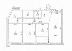
Площа: | 95 / 60 / 22 м2 |
Санвузол: | 1 роздільний |
Балкон: | лоджія |
Додатково: | новобудова |
Адреса: Київ, Подільський, вул. Віктора Некрасова, 12А
№ 212-988-252
Продається чудова 3 - к квартира , в комфортному та безпечному ЖК Діброва парк , за адресою: вул. Віктора Некрасова 12А, Загальна площа 95 m2, 16 поверх, 26 поверхового
Затишна та світла квартира в престижному районі столиці, що ідеально підходить для комфортного проживання сім'ї після ремонту.
Другий будинок, висока секція, 16 поверх.
панорамні вікна виходять на схід з чудовим краєвидом на лісо-паркову зону і весь Київ.
Дуже зручне і комфортне планування:
3 окремі спальні, кухня-їдальня, 2 санвузли, гардеробна кімната, скляна лоджія, передпокій.
Висота стелі 3метри.
Розвинена мережа наземного громадського транспорту. Розвинена інфраструктура – магазини, парки, ресторани, аптеки, державні та приватні заклади лікування та освіти.
Якщо Вас зацікавило - телефонуйте і ми Вам організуємо перегляд.
Допоможемо придбати і продати нерухомість.
Агентство нерухомості 'Житломанія'
Працюючи з нами, ви отримуєте перевірене житло від реальних орендодавців, та підтримку на всіх етапах угоди.Комісія за послуги 4% за фактом підписання угоди.