Продається квартира Київ, Дарницький, Івана Кочерги, 17А (№ 212-995-112)

Ціна: 69 886 $
Характеристики
Ціна: | 69 886 $ |
---|---|
№ об'єкта: | 212-995-112 |
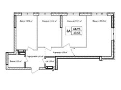
Кімнат: | 3 розд |
Поверх: | 7 / 24 ліфт |
Площа: | 65 / 40.58 / 10.58 м2 |
Санвузол: | 1 сумісний |
Додатково: | новобудова |
Адреса: Київ, Дарницький, Івана Кочерги, 17А
Об'єкт № 212-995-112
Пропонуємо на продаж 3-кімнатну квартиру в комфортному та безпечному ЖК Синергія Київ за адресою: вул. І. Кочерги, 17А, яка розташована на 7 поверсі 24-поверхового будинку.
Будинок бетонно-монолітний комфорт-класу.
Комплекс складається всього лиш з двох будинків на 24 поверхи, розташованих під кутом один до одного. Тож, з ваших вікон буде видно панорами Дніпра та зелені схили центральної частини Києва. А між будинками комплексу облаштують зелені променади та затишний двір-парк.
ЖК «Синергія Київ» має всі характеристики житла класу 'комфорт', а також деякі елементи проєктів бізнес-класу. Будівництво ведеться з якісних та надійних матеріалів з використанням сучасних енергоефективних технологій: будинки зводяться за монолітно-каркасною технологією, зовнішні стіни з газобетонних блоків утеплюються мінеральною ватою, внутрішні міжквартирні – з цегли. На великі вікна встановлюють енергоощадні склопакети Rehau Euro-Design 70 з аргоном - для надзвичайних краєвидів та максимальної звукоізоляції.
Квартира чекає свого творчого покупця для втілення своїх мрій у реальність!
Агентство нерухомості 'Житломанія'
Працюючи з нами, ви отримуєте перевірене житло від реальних орендодавців, та підтримку на всіх етапах угоди.
Звяжіться з нами для організації перегляду та додаткової інформації.
Комісія за послуги 4% за фактом підписання угоди.