Продається квартира просп. Оболонський, 1, Київ, Оболонський, м. Оболонь (№ 213-012-601)
Ціна: 193 000 $

просп. Оболонський, 1, Київ, Оболонський, м. Оболонь
Характеристики
| Ціна: | 193 000 $ |
|---|---|
| № об'єкта: | 213-012-601 |
| Кімнат: | 2 розд |
| Поверх: | 24 / 26 ліфт |
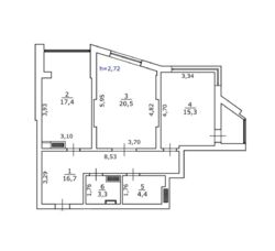
| Площа: | 80.4 / 35.8 / 17.4 м2 |
| Санвузол: | 1 сумісний |
Опис
Об'єкт № 213-012-601 БН
Продається чудова 2кімнатна квартира в Оболонському районі, в комфортному та безпечному ЖК ObolonSky за адресою: просп. Оболонський, 1. Загальна площа 80,4 m2, 24 поверх 26-поверхового монолітного будинку.
Затишна та світла квартира в престижному районі столиці, що ідеально підходить для комфортного проживання сім'ї
Зроблено якісний дизайнерський ремонт, все надійно, добротно, робили для себе. Сантехніка та побутова техніка від відомих брендів, все працює ідеально і в гарному стані.
Будинок монолітно-каркасний, утеплений. Наявні 3 пасажирські ліфти і 1 грузовий 'ЄВРОФОРМАТ'.
В будинку є генератор
У комплексі є підземний паркінг на 100+ місць. А також дуже великий гостьовий паркінг на території комплексу. Також є підземна парковка в LAKE PLAZA (деньмісяць) і біля проспекту є відкритий паркінг (для автовласників проблем з паркінгом не буде взагалі). На території комплексу є свій парк і озеро, спортивний майданчик, басктебольне поле.
Розвинена мережа наземного громадського транспорту. Розвинена інфраструктура – магазини, парки, ресторани, аптеки, державні та приватні заклади лікування та освіти. Поруч з будинком ТЦ LAKE PLAZA, ТЦ Dream Town, школа, Нова Пошта, Укрпошта, супермаркети: VARUS, Велика Кишеня, Сільпо. Також поруч є спортзали: APOLLO, TOTAL FITNESS, Кроссфіт Банда, СпортЛайф.
Якщо Вас зацікавило - телефонуйте і ми Вам організуємо перегляд.
Допоможемо придбати і продати нерухомість.
Агентство нерухомості 'Житломанія'
Працюючи з нами, ви отримуєте перевірене житло від реальних орендодавців, та підтримку на всіх етапах угоди.Комісія за послуги 4% за фактом підписання угоди.




















