Продається квартира Київ, Подільський, Сергія Данченка, 5  (№ 213-014-923)

Продається квартира Київ, Подільський, Сергія Данченка, 5 фото 1

Ціна: 69 778 $

Характеристики

Ціна: 69 778 $
№ об'єкта: 213-014-923
Кімнат: 1
Поверх: 19 / 25
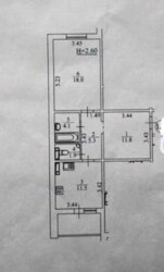
Площа: 57 / - / 12 м2

Адреса: Київ, Подільський, Сергія Данченка, 5

#213-014-923 Пропонуємо на продаж 1 кімнатну квартиру в комфортному та безпечному ЖК Крыстер Град, за адресою: вул.Сергія Данченка 5, яка розташована на 19 поверсі 25 поверхового будинку.
Будинок (монолітно-каркасний / комфорт-клас)
Раціональне планування. Квартира внутрішня. Гардеробна.
Закрита територія.
Підземный паркінг.
Лічильники на все.
Автономне опалення.
Будинок введений в екплуатацію.
Перепоступка.
Зручна транспортна розв`язка, що дозволить швидко дістатись у будь-який куточок міста. Вся інфраструктура в пішій доступності.
Тихий та затишний двір, зони для відпочинку та паркування.
Квартира чекає свого творчого покупця для втілення своїх мрій у реальність!

Агентство нерухомості 'Житломанія'
Працюючи з нами, ви отримуєте перевірене житло від реальних орендодавців, та підтримку на всіх етапах угоди.
Звяжіться з нами для організації перегляду та додаткової інформації.
Комісія за послуги 4% за фактом підписання угоди.

Об'єкт на карті