Продається квартира Київ, Подільський, Берковецька, 6А (№ 213-023-580)

Ціна: 69 999 $
Характеристики
Ціна: | 69 999 $ |
---|---|
№ об'єкта: | 213-023-580 |
Кімнат: | 1 |
Поверх: | 2 / 14 |
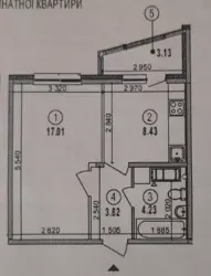
Площа: | 37 / - / 8 м2 |
Адреса: Київ, Подільський, Берковецька, 6А
ГО#213-023-580 Пропонуємо на продаж 1 кімнатну квартиру в комфортному та безпечному домі, за адресою: вул.Берковецька 6А, яка розташована на 2 поверсі 14 поверхового будинку.
Будинок (монолітно-каркасний / комфорт-клас)
Раціональне планування. Квартира внутрішня. Гардеробна.
ЄОселя. ЄВідновлення
Зручна транспортна розв`язка, що дозволить швидко дістатись у будь-який куточок міста. Вся інфраструктура в пішій доступності.
Тихий та затишний двір, зони для відпочинку та паркування.
Квартира чекає свого творчого покупця для втілення своїх мрій у реальність!
Агентство нерухомості 'Житломанія'
Працюючи з нами, ви отримуєте перевірене житло від реальних продавців, та підтримку на всіх етапах угоди.
Звяжіться з нами для організації перегляду та додаткової інформації.
Комісія за послуги 4% за фактом підписання угоди.