1 кімнатна квартира біля М Мінська (№ 213-032-259)

Ціна: 42 000 $
Характеристики
Ціна: | 42 000 $ |
---|---|
№ об'єкта: | 213-032-259 |
Кімнат: | 1 |
Поверх: | 16 / 16 |
Площа: | 35 / - / 8 м2 |
Адреса: Київ, Оболонський, вул. Левка Лук'яненка (Маршала Тимошенка), 13, м. Мінська
213-032-259
1 кімнатна квартира метро Мінська 3 хвилини пішки Дрим Таун.
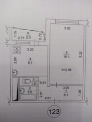
Продаж 1-кімнатної квартири 35.3м2 16 поверх За адресою: вул. Левка Лукяненка 13 (Маршала Тимошенка), М. Мінська-3 хв. пішки, Біля будинку-ЕКО- маркет, Нова пошта, Квартира с частковим ремонтом. Планування: Кухня ( плита, холодильник, пральна машина, стіл, стільці). Кімната (2 розкладні дивани, робочий стіл ), Санвузол роздільний, У коридорі-шафа-купе, Засклений балкон, металопластикові вікна, В коридорі є закритий тамбур. Домофон .Підїзд чистий..
Вид обєкта: Вторинний ринок;
Тип будинку: Житловий фонд 91-2000-і;
Тип стін: Панельний;
Клас житла: Економ;
Планування: Роздільна;
Cанвузол: Роздільний;
Опалення: Централізоване;
Ремонт: Житловий стан;
Меблювання: Так;
Побутова техніка: Плита, Холодильник;
Мультимедіа: Wi-Fi;
Комфорт: Ванна, Меблі на кухні, Балкон, лоджія, Ліфт;
Комунікації: Газ, Центральний водопровід, Електрика, Центральна каналізація, Асфальтована дорога;
Інфраструктура (до 500 метрів): Дитячий садок, Школа, Зупинка транспорту, Ринок, Магазин, кіоск, Супермаркет, ТРЦ, Дитячий майданчик, Аптека;