Продається квартира Київ, Оболонський, Пріорська, 16 (№ 213-034-107)

Ціна: 109 000 $
Характеристики
Ціна: | 109 000 $ |
---|---|
№ об'єкта: | 213-034-107 |
Кімнат: | 2 |
Поверх: | 4 / 23 |
Площа: | 65 / - / 15 м2 |
Адреса: Київ, Оболонський, Пріорська, 16
СС № 213-034-107
Продається чудова 1 кімнатна квартира у районі, за адресою: ЖК Вишиванка, Пріорська,16,
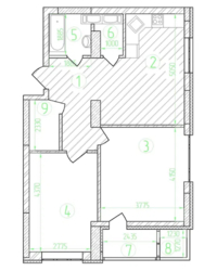
Загальна площа: 65/15
Поверх: 4
Кухня-студія + 2 окремі спальні 18 і 16 м
Кухня студія-15 м кв, дві спальні 17 і 15 м кв, гардероб,
Два сан. вузла.
Світло є завжди! Вода є завжди! Парковка є завжди!
Встановлена станція безперебійного електропостачання на 3кВТ.
Затишна та світла квартира в престижному районі столиці, що ідеально підходить для комфортного проживання сім'ї
Розвинена мережа наземного громадського транспорту.
Розвинена інфраструктура – магазини, парки, ресторани, аптеки, державні та приватні заклади лікування та освіти.
Якщо Вас зацікавило - телефонуйте і ми Вам організуємо перегляд.
Допоможемо придбати і продати нерухомість.
Побутова техніка: Пральна машина, Варильна панель, Духова шафа, Холодильник;
Інфраструктура (до 500 метрів): Супермаркет, ТРЦ, Парк, зелена зона, Дитячий майданчик, Лікарня, поліклініка, Ресторан, кафе, Дитячий садок, Магазин, кіоск, Метро;
Агентство нерухомості 'Житломанія'
Працюючи з нами, ви отримуєте перевірене житло від реальних покупців, та підтримку на всіх етапах угоди.
Комісія за послуги 4%