Продається квартира Київ, Шевченківський, Данила Щербаківського, 52 (№ 213-034-629)

Ціна: 52 555 $
Характеристики
Ціна: | 52 555 $ |
---|---|
№ об'єкта: | 213-034-629 |
Кімнат: | 1 |
Поверх: | 13 / 20 |
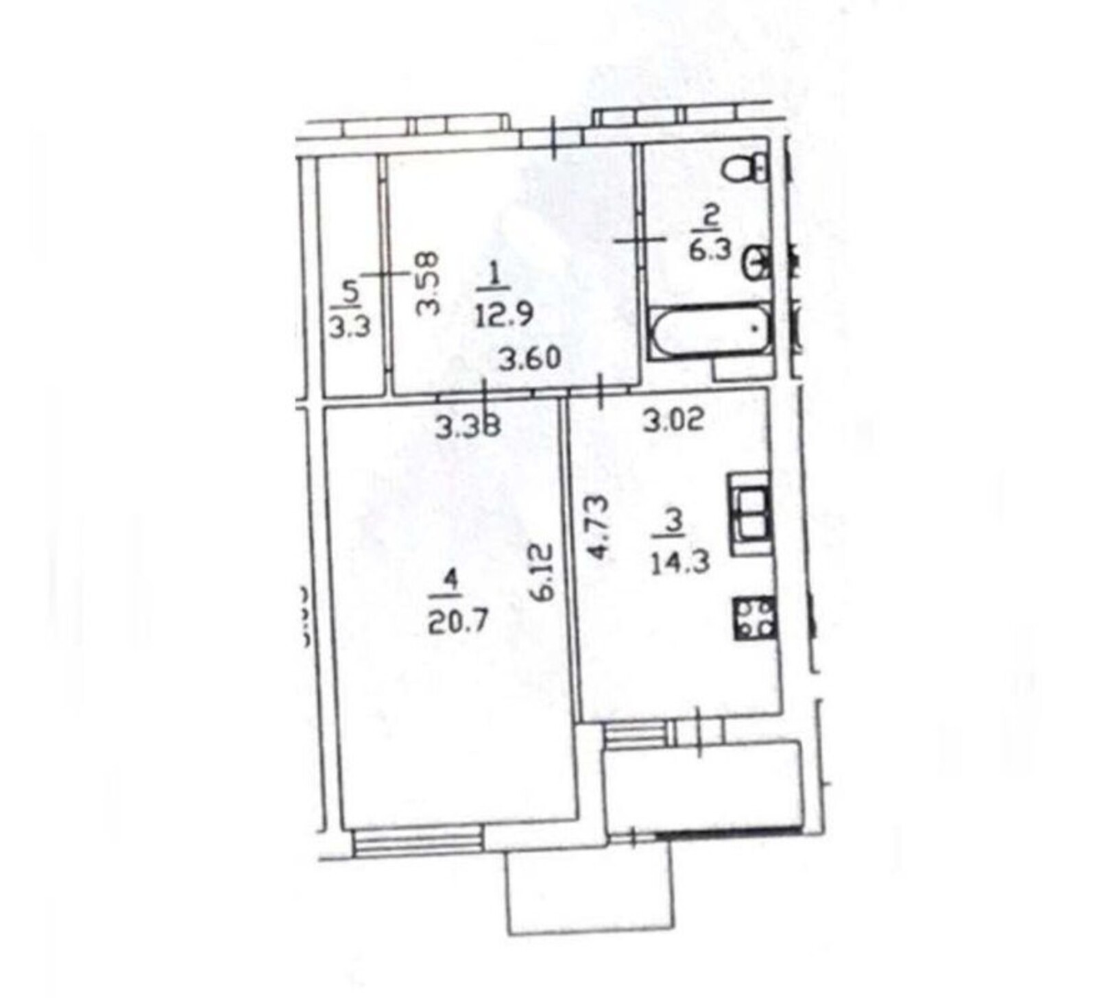
Площа: | 61 / - / 14 м2 |
Адреса: Київ, Шевченківський, Данила Щербаківського, 52
ГО#213-034-629 Продається чудова 1-квартира в Шевченківському районі, в комфортному та безпечному домі, за адресою: вул.Данила Щербицького, Загальна площа 61m2, 13 поверх, 20 поверхового монолітного будинка 2021 року
Затишна та світла квартира в престижному районі столиці, що ідеально підходить для комфортного проживання сім'ї
Розвинена мережа наземного громадського транспорту. Розвинена інфраструктура – магазини, парки, ресторани, аптеки, державні та приватні заклади лікування та освіти.
Якщо Вас зацікавило - телефонуйте і ми Вам організуємо перегляд.
Допоможемо придбати і продати нерухомість.
Агентство нерухомості 'Житломанія'
Працюючи з нами, ви отримуєте перевірене житло від реальних орендодавців, та підтримку на всіх етапах угоди.Комісія за послуги 4% за фактом підписання угоди.