Продається квартира Київ, Святошинський, генерала Наумова 25 (№ 213-034-660)

Ціна: 57 000 $
Характеристики
Ціна: | 57 000 $ |
---|---|
№ об'єкта: | 213-034-660 |
Кімнат: | 3 |
Поверх: | 3 / 9 |
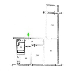
Площа: | 61 / - / 8 м2 |
Адреса: Київ, Святошинський, генерала Наумова 25
ЛМ 213-034-660 Продається чудова 3-квартира в Святошинському районі, за адресою: вул. генерала Наумова 25, Загальна площа 61 m2, 3 поверх, 9 поверхового будинку. Затишна та світла квартира в престижному районі столиці, що ідеально підходить для комфортного проживання сім'ї. Розвинена мережа наземного громадського транспорту. Розвинена інфраструктура – магазини, парки, ресторани, аптеки, державні та приватні заклади лікування та освіти. Якщо Вас зацікавило - телефонуйте і ми Вам організуємо перегляд. Допоможемо придбати і продати нерухомість.
Агентство нерухомості 'Житломанія' Працюючи з нами, ви отримуєте перевірене житло від реальних продавців, та підтримку на всіх етапах угоди.Комісія за послуги 4% за фактом підписання угоди.