Продаж квартири на проспекті Оболонському 34 В (№ 213-036-005)

Ціна: 44 000 $
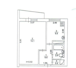
Характеристики
Ціна: | 44 000 $ |
---|---|
№ об'єкта: | 213-036-005 |
Кімнат: | 1 |
Поверх: | 6 / 9 |
Площа: | 34 / 22 / 7 м2 |
Санвузол: | 1 |
Балкон: | балкон |
Адреса: Київ, Оболонський, проспект Оболонському, 34 В
С № 213-036-005
Продається чудова 1 кімнатна квартира у районі, за адресою: проспекті Оболонському 34 В ,
Загальна площа: 34/22/7
Поверх: 6/9
Метро 5 хв. пішки метро Героїв Дніпра і Мінская
Сучасний ліфт
Затишна та світла квартира в престижному районі столиці, що ідеально підходить для комфортного проживання сім'ї
Розвинена мережа наземного громадського транспорту.
Розвинена інфраструктура – магазини, парки, ресторани, аптеки, державні та приватні заклади лікування та освіти.
Якщо Вас зацікавило - телефонуйте і ми Вам організуємо перегляд.
Допоможемо придбати і продати нерухомість.
Побутова техніка: Пральна машина, Варильна панель, Духова шафа, Холодильник;
Інфраструктура (до 500 метрів): Супермаркет, ТРЦ, Парк, зелена зона, Дитячий майданчик, Лікарня, поліклініка, Ресторан, кафе, Дитячий садок, Магазин, кіоск, Метро;
Агентство нерухомості 'Житломанія'
Працюючи з нами, ви отримуєте перевірене житло від реальних покупців, та підтримку на всіх етапах угоди.
Комісія за послуги 4%