Головна >> Продаж квартир >> Об'єкт №213036165

Продається квартира Київ, Подільський, Сергія Данченка, 32Б  (№ 213-036-165)

Продається квартира Київ, Подільський, Сергія Данченка, 32Б фото 1

Ціна: 100 000 $

Характеристики

Ціна: 100 000 $
№ об'єкта: 213-036-165
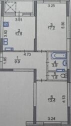
Кімнат: 2
Поверх: 5 / 7 ліфт
Площа: 60 / - / 13 м2
Додатково: новобудова

Адреса: Київ, Подільський, Сергія Данченка, 32Б

ГО#213-036-165 Пропонуємо на продаж 2 кімнатну квартиру в комфортному та безпечному ЖК Новомостицько-Замковецька, за адресою: вул. Сергія Данченка 32Б, яка розташована на 5 поверсі 7 поверхового будинку.
Будинок (монолітно-каркасний / комфорт-клас)
Раціональне планування. Квартира двостороння. Гардеробна.
Закрита територія.
Підземный паркінг.
Лічильники на все.
Підземний паркінг. Паркувальне місце.
Автономне опалення.
Зручна транспортна розв`язка, що дозволить швидко дістатись у будь-який куточок міста. Вся інфраструктура в пішій доступності.
Тихий та затишний двір, зони для відпочинку та паркування.
Квартира чекає свого творчого покупця для втілення своїх мрій у реальність!

Агентство нерухомості 'Житломанія'
Працюючи з нами, ви отримуєте перевірене житло від реальних продавців, та підтримку на всіх етапах угоди.
Звяжіться з нами для організації перегляду та додаткової інформації.
Комісія за послуги 4% за фактом підписання угоди.

Об'єкт на карті