Продається квартира Київ, Святошинський, Берковецька, 6А (№ 213-038-326)

Ціна: 67 999 $
Характеристики
Ціна: | 67 999 $ |
---|---|
№ об'єкта: | 213-038-326 |
Кімнат: | 1 |
Поверх: | 2 / 14 ліфт |
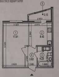
Площа: | 37 / - / 8 м2 |
Санвузол: | 1 сумісний |
Балкон: | балкон |
Адреса: Київ, Святошинський, Берковецька, 6А
СЄ 213-038-326
Продається чудова 1 кім квартира в Святошинському районі, в комфортному та безпечному ЖК Laky Land , за адресою: вул. Берковецька 6А. Загальна площа 37 m2, 2 поверх, 14 поверхового будинку.
Затишна та світла квартира в престижному районі столиці, що ідеально підходить для комфортного проживання сім'ї
Розвинена мережа наземного громадського транспорту. Розвинена інфраструктура – магазини, парки, ресторани, аптеки, державні та приватні заклади лікування та освіти.
Якщо Вас зацікавило - телефонуйте і ми Вам організуємо перегляд.
Допоможемо придбати і продати нерухомість.
Агентство нерухомості 'Житломанія'
Працюючи з нами, ви отримуєте перевірене житло від реальних покупців, та підтримку на всіх етапах угоди.Комісія за послуги 4% за фактом підписання угоди.