Продається квартира Печерський узвіз, 8, Київ (№ 213-047-736)
Ціна: 113 000 $

Печерський узвіз, 8, Київ
Характеристики
| Ціна: | 113 000 $ |
|---|---|
| № об'єкта: | 213-047-736 |
| Кімнат: | 2 |
| Поверх: | 4 / 9 |
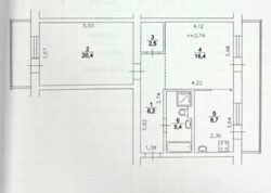
| Площа: | 72 / - / 9 м2 |
Опис
Об'єкт ВС № 213-047-736
Пропонуємо на продаж 2 кімнатну квартиру за адресою: Печерський узвіз, 8, яка розташована на 4 поверсі 9 поверхового будинку.
Будинок чешка
Раціональне планування. Квартира внутрішня.
Лічильники на все.
Централізоване опалення.
Зручна транспортна розв`язка, що дозволить швидко дістатись у будь-який куточок міста. Вся інфраструктура в пішій доступності.
Тихий та затишний двір, зони для відпочинку та паркування.
Квартира чекає свого творчого покупця для втілення своїх мрій у реальність!
Агентство нерухомості 'Житломанія'
Працюючи з нами, ви отримуєте перевірене житло від реальних орендодавців, та підтримку на всіх етапах угоди.
Звяжіться з нами для організації перегляду та додаткової інформації.
Комісія за послуги 4% за фактом підписання угоди









