Продається квартира Київ, Голосіївський, Столичне шосе, 1, м. Видубичі (№ 213-049-778)

Ціна: 60 000 $
Характеристики
| Ціна: | 60 000 $ |
|---|---|
| № об'єкта: | 213-049-778 |
| Кімнат: | 1 см/рз |
| Поверх: | 8 / 26 ліфт |
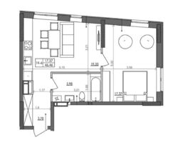
| Площа: | 46 / 17.37 / 19.33 м2 |
| Санвузол: | 1 сумісний |
| Балкон: | відсутній |
| Додатково: | новобудова |
Адреса: Київ, Голосіївський, Столичне шосе, 1, м. Видубичі
Ю № 213-049-778
Продається чудова 1 кімнатна квартира в ЖК 'Svitlo Park' у Голосіївському районі, за адресою: вул.Столичне шосе, 1 , Загальна площа 46.1 м², 1- кімнатна квартира на 8 поверсі 26 поверхового будинку.
Затишна та світла квартира в престижному районі столиці, що ідеально підходить для комфортного проживання сім'ї. без ремонту.
В квартирі 4 вікна, які виходять в бік Дніпра (тобто не в бік Столичного шосе), кухня-вітальня та окремо спальня.
Розвинена мережа наземного громадського транспорту. Розвинена інфраструктура – магазини, парки, ресторани, аптеки, державні та приватні заклади лікування та освіти.
Якщо Вас зацікавило - телефонуйте і ми Вам організуємо перегляд.
Допоможемо придбати і продати нерухомість.
Агентство нерухомості 'Житломанія'
Працюючи з нами, ви отримуєте перевірене житло від реальних покупців, та підтримку на всіх етапах угоди.Комісія за послуги 4% за фактом підписання угоди.





















