Продається квартира Київ, Оболонський, Героїв Полку Азов, 7 (№ 213-052-083)

Ціна: 73 000 $
Характеристики
Ціна: | 73 000 $ |
---|---|
№ об'єкта: | 213-052-083 |
Кімнат: | 2 розд |
Поверх: | 6 / 9 |
Площа: | 56 / 34 / 8 м2 |
Санвузол: | 1 роздільний |
Балкон: | балкон |
Адреса: Київ, Оболонський, Героїв Полку Азов, 7
НВ № 213-052-083
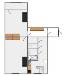
Продається чудова 2 -квартира в Оболонському районі, в комфортному та безпечному будинку , за адресою: вул.Героїв Полку Азов 7, Загальна площа 56 m2, 6 поверх, 9 поверхового панельного будинку .
Затишна та світла квартира в престижному районі столиці, що ідеально підходить для комфортного проживання сім'ї
Розвинена мережа наземного громадського транспорту. Розвинена інфраструктура – магазини, парки, ресторани, аптеки, державні та приватні заклади лікування та освіти.
Якщо Вас зацікавило - телефонуйте і ми Вам організуємо перегляд.
Допоможемо придбати і продати нерухомість.
Агентство нерухомості 'Житломанія'
Працюючи з нами, ви отримуєте перевірене житло від реальних орендодавців, та підтримку на всіх етапах угоди.Комісія за послуги 4% за фактом підписання угоди.