Продається квартира Київ, Оболонський, Коноплянська, 22Б (№ 213-059-004)

Ціна: 60 000 $
Характеристики
Ціна: | 60 000 $ |
---|---|
№ об'єкта: | 213-059-004 |
Кімнат: | 1 розд |
Поверх: | 24 / 25 ліфт |
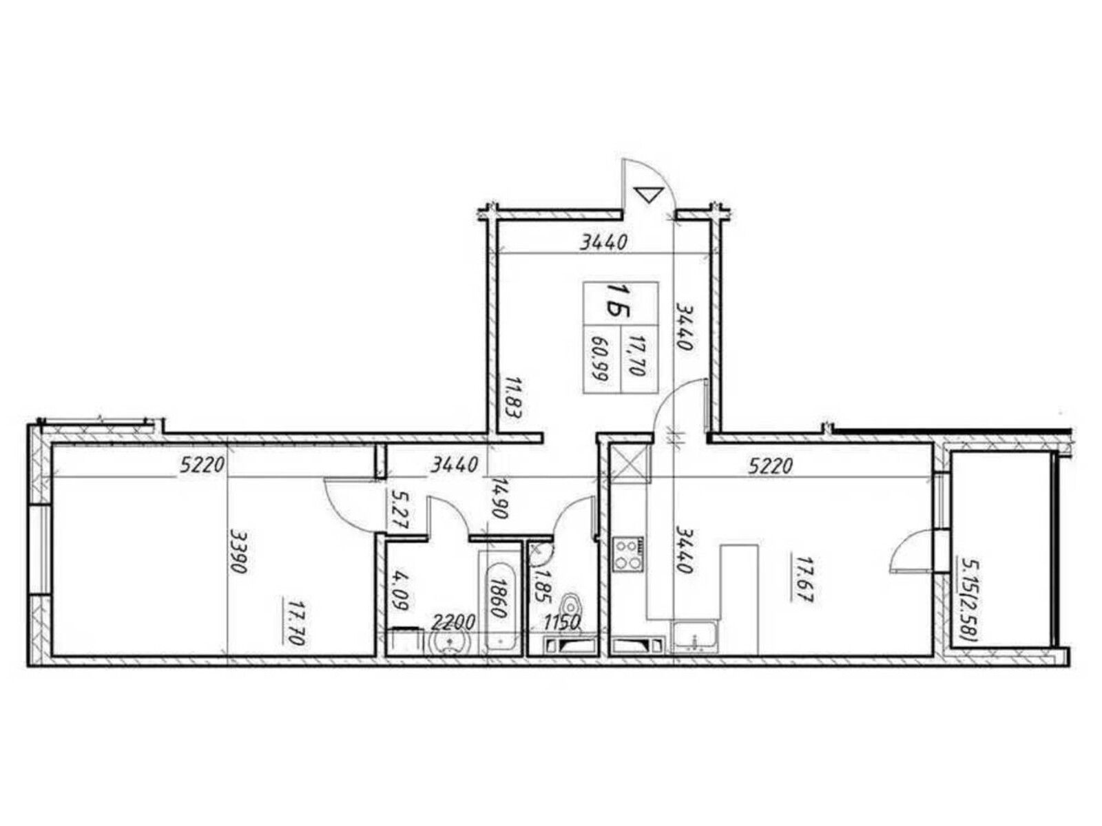
Площа: | 61 / 17.7 / 17.67 м2 |
Санвузол: | 1 роздільний |
Балкон: | балкон |
Додатково: | новобудова |
Адреса: Київ, Оболонський, Коноплянська, 22Б
Ю № 213-059-004
Продається чудова 1 кімнатна квартира в ЖК 'Навігатор 2' у Оболлонському районі, за адресою: вул. Коноплянська, 22Б, Загальна площа 61 м², 1- кімнатна квартира на 24 поверсі 25 поверхового будинку.
Затишна та світла квартира в престижному районі столиці, що ідеально підходить для комфортного проживання сім'ї. З частковим ремонтом від забудовника.
Перепоступка.
Розвинена мережа наземного громадського транспорту. Розвинена інфраструктура – магазини, парки, ресторани, аптеки, державні та приватні заклади лікування та освіти.
Якщо Вас зацікавило - телефонуйте і ми Вам організуємо перегляд.
Допоможемо придбати і продати нерухомість.
Агентство нерухомості 'Житломанія'
Працюючи з нами, ви отримуєте перевірене житло від реальних покупців, та підтримку на всіх етапах угоди.Комісія за послуги 4% за фактом підписання угоди.