Продається квартира Київ, Деснянський (№ 213-063-590)

Ціна: 57 500 $
Характеристики
| Ціна: | 57 500 $ |
|---|---|
| № об'єкта: | 213-063-590 |
| Кімнат: | 2 |
| Поверх: | 14 / 25 |
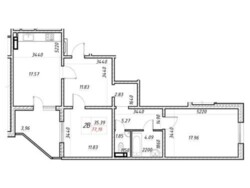
| Площа: | 77 / - / 17 м2 |
Адреса: Київ, Деснянський
2к-77м2 з РЕМОНТОМ, ЖК Деснянський вул. Електротехнічна 43 єОселя.В продажі 2к квартира з РЕМОНТОМ! в ЖК Деснянський, вул. Електротехнічна, 43, Житлова 35.39 Кухня 17.57 Житловий комплекс «Деснянський» складається з 3-х багатоповерхових будинків (25 поверхів), обєднаних спільною прибудинковою територією та належне облаштування: квіткові клумби, зелені газони, зони відпочинку для дорослих, дитячі та спортивні майданчики. Будівництво виконується за вдосконаленими технологіями панельного будівництва, які передбачають сучасне фасадне утеплення будинків та поліпшене планування квартир. Територіально, це східна межа житлового масиву Троєщина – цікава й перспективна локація неподалік від найбільшого у Києві озера Алмазне, улюбленого місця відпочинку на природі жителів навколишніх кварталів. Тобто, з одного боку ЖК розташований житловий масив з розвинутою інфраструктурою, а з іншого – фактично рекреаційна зона з місцями для відпочинку на природі. В межах пішої доступності від вашого майбутнього житла розташовано достатньо торгівельних, освітніх, медичних та освітніх установ. В 5-10-ти хвилинах ходу від ЖК в наявності численні магазини та маркети, речові та продуктові ринки та ЦОП «METRO». Автовласники оцінять зручну для них наявність неподалік від дому в потрібній кількості різноманітних СТО та автомийку. Поруч з ЖК «Деснянський» розташовано районний діагностичний центр та поліклініка, є два відділенняНової Пошти, різноманітні установи. Родинам з дітьми важливо знати, що в пішій доступності є кілька загальноосвітніх шкіл (№ 238, 242, 248, 277, 282), а також коледж та гімназія. Також неподалік від ЖК знаходиться Молодіжний парк площею майже 10 га, з атракціонами для дітей та алеями для відпочинку та неспішних прогулянок серед висаджених тут лип, кленів та берез..Вид обєкта: Новобудова;Тип будинку: Житловий фонд від 2021 р.;Назва ЖК: ЖК Деснянський;Тип угоди: Переуступка;Тип стін: Панельний;Клас житла: Комфорт;Cанвузол: Роздільний;






