Продається квартира Київ, Печерський, Козацька, 55А (№ 213-074-713)

Ціна: 75 000 $
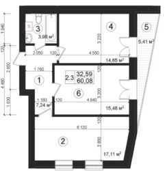
Характеристики
Ціна: | 75 000 $ |
---|---|
№ об'єкта: | 213-074-713 |
Кімнат: | 2 |
Поверх: | 4 / 5 |
Площа: | 60 / - / 14 м2 |
Адреса: Київ, Печерський, Козацька, 55А
ГО#213-074-713 Продається чудова 2-квартира в Печерський районі, в комфортному та безпечному домі, за адресою: вул.Козацька 55А, Загальна площа 60m2, 4 поверх, 5 поверхового монолітного будинку.
Затишна та світла квартира в престижному районі столиці, що ідеально підходить для комфортного проживання сім'ї
Розвинена мережа наземного громадського транспорту. Розвинена інфраструктура – магазини, парки, ресторани, аптеки, державні та приватні заклади лікування та освіти.
Якщо Вас зацікавило - телефонуйте і ми Вам організуємо перегляд.
Допоможемо придбати і продати нерухомість.
Агентство нерухомості 'Житломанія'
Працюючи з нами, ви отримуєте перевірене житло від реальних орендодавців, та підтримку на всіх етапах угоди.Комісія за послуги 4% за фактом підписання угоди.