Продається квартира Михайла Максимовича, 24, Київ, Голосіївський (№ 213-074-776)
Ціна: 2 995 000 грн.

Михайла Максимовича, 24, Київ, Голосіївський
Характеристики
| Ціна: | 2 995 000 грн. |
|---|---|
| № об'єкта: | 213-074-776 |
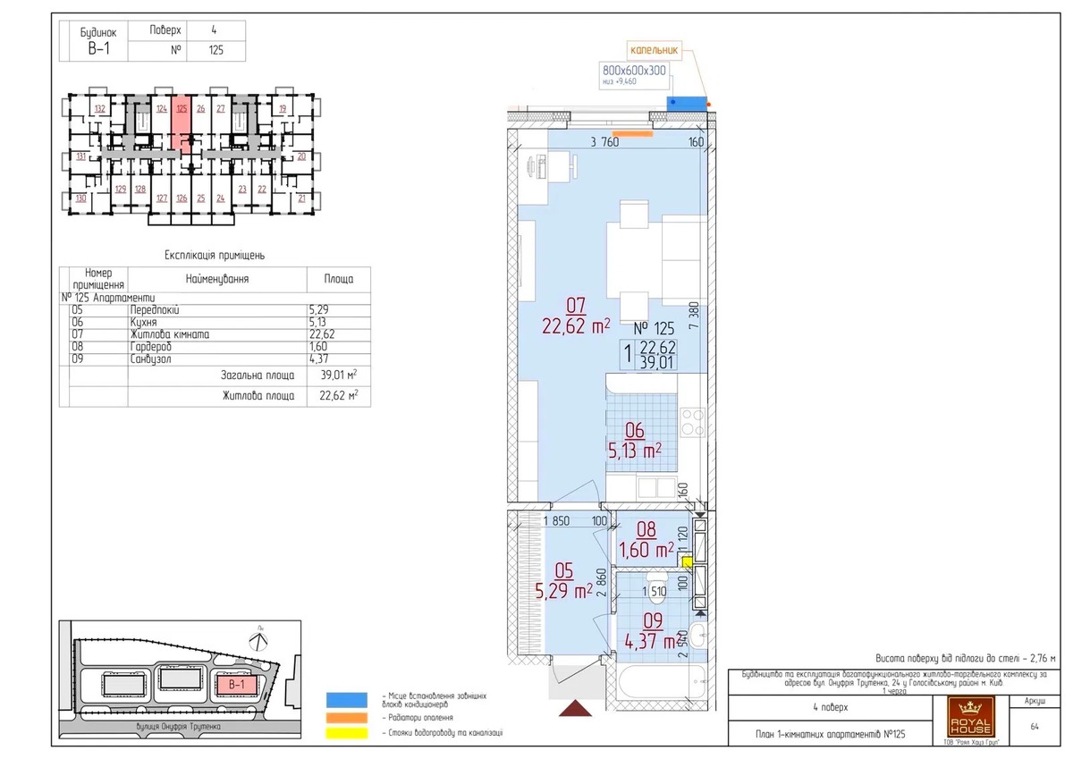
| Кімнат: | 1 суміж |
| Поверх: | 4 / 14 |
| Площа: | 39 / - / 5 м2 |
| Санвузол: | сумісний |
Опис
Об'єкт ВС1 № 213-074-776
Пропонуємо на продаж 1 кімнатну квартиру за адресою: ЖК Нова Англія, вул. Михайла Максимовича 24, яка розташована на 4 поверсі 14 поверхового будинку.
Будинок цегляний
Раціональне планування. Квартира внутрішня.
Лічильники на все.
Централізоване опалення.
Зручна транспортна розв`язка, що дозволить швидко дістатись у будь-який куточок міста. Вся інфраструктура в пішій доступності.Тихий та затишний двір, зони для відпочинку та паркування.
Агентство нерухомості 'Житломанія'
Працюючи з нами, ви отримуєте перевірене житло від реальних орендодавців, та підтримку на всіх етапах угоди.
Зв'яжіться з нами для організації перегляду та додаткової інформації.
Комісія за послуги 4% за фактом підписання угоди













