Продається квартира Київ, Голосіївський, Науки, 58В (№ 213-080-287)

Ціна: 91 500 $
Характеристики
Ціна: | 91 500 $ |
---|---|
№ об'єкта: | 213-080-287 |
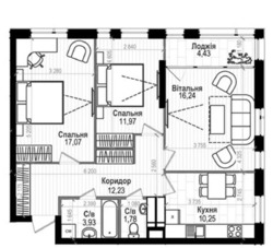
Кімнат: | 3 |
Поверх: | 12 / 24 |
Площа: | 78 / - / 11 м2 |
Адреса: Київ, Голосіївський, Науки, 58В
ГО#213-080-287 Пропонуємо на продаж 3 кімнатну квартиру в комфортному та безпечному ЖК Науки 58, за адресою: пр-т Науки 58В, яка розташована на 12 поверсі 24 поверхового будинку.
Будинок (монолітно-каркасний / комфорт-клас)
Раціональне планування. Квартира внутрішня.
Лічильники на все.
Автономне опалення.
Будинок введений в екплуатацію.
Зручна транспортна розв`язка, що дозволить швидко дістатись у будь-який куточок міста. Вся інфраструктура в пішій доступності.
Тихий та затишний двір, зони для відпочинку та паркування.
Квартира чекає свого творчого покупця для втілення своїх мрій у реальність!
Агентство нерухомості 'Житломанія'
Працюючи з нами, ви отримуєте перевірене житло від реальних орендодавців, та підтримку на всіх етапах угоди.
Звяжіться з нами для організації перегляду та додаткової інформації.
Комісія за послуги 4% за фактом підписання угоди.