Продається квартира Київ, Святошинський, бульвар М. Руденка, 17 (№ 213-084-760)

Ціна: 43 000 $
Характеристики
Ціна: | 43 000 $ |
---|---|
№ об'єкта: | 213-084-760 |
Кімнат: | 2 розд |
Поверх: | 8 / 9 ліфт |
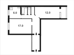
Площа: | 51 / 29 / 6 м2 |
Санвузол: | 1 роздільний |
Балкон: | балкон |
Адреса: Київ, Святошинський, бульвар М. Руденка, 17
Ю № 213-084-760
Продається чудова 2 кімнатна квартира в Святошинському районі, За адресою: бульвар М. Руденка, 17. Квартира на 8 поверсі 9 поверхового будинку.
Затишна та світла квартира в престижному районі столиці, що ідеально підходить для комфортного проживання сім'ї.
Квартира двостороння - вікна виходять у двір та у паркову зону.
Тамбур загальний на три квартири, замикається на ключ.
Квартира під ремонт 8/9 пов., площа 51/29/6 м2, висота стелі 2.6, з/в роздільний, комора, 2 антресолі, лоджія засклена.
Гаряча вода централізована, центральне опалення, лічильники ХВ і ГВ, лічильник по електроенергії в квартирі. Дерев'яні вікна, будинок побудований в 1971 році.
Розвинена мережа наземного громадського транспорту. Розвинена інфраструктура – магазини, парки, ресторани, аптеки, державні та приватні заклади лікування та освіти.
Якщо Вас зацікавило - телефонуйте і ми Вам організуємо перегляд.
Допоможемо придбати і продати нерухомість.
Агентство нерухомості 'Житломанія'
Працюючи з нами, ви отримуєте перевірене житло від реальних покупців, та підтримку на всіх етапах угоди.Комісія за послуги 5% за фактом підписання угоди.