Продається квартира Київ, Подільський, Перемишльська 2г (№ 213-085-734)

Ціна: 100 000 $
Характеристики
| Ціна: | 100 000 $ |
|---|---|
| № об'єкта: | 213-085-734 |
| Кімнат: | 1 |
| Поверх: | 19 / 25 |
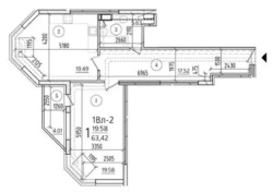
| Площа: | 64 / - / 20 м2 |
Адреса: Київ, Подільський, Перемишльська 2г
ЛМ 213-085-734 Продається чудова 1-кімнатна квартира в Подільському районі, в комфортному та безпечному ЖК паркова вежа, за адресою: вул Перемишльська 2г. Загальна площа 64 m2, 19 поверх, 25 поверхового будинку Затишна та світла квартира, що ідеально підходить для комфортного проживання. Розвинена мережа громадського транспорту та інфраструктура. Телефонуйте і ми Вам організуємо перегляд. Допоможемо придбати і продати нерухомість.
АН ”Житломанія” Працюючи з нами, ви отримуєте перевірене житло від реальних продавців, та підтримку на всіх етапах угоди. Комісія за послуги 3% за фактом підписання угоди.





















