Продається квартира Гліба Бабича (Канальна), 8Б, Київ, Дарницький (№ 213-091-176)
Ціна: 55 500 $

Гліба Бабича (Канальна), 8Б, Київ, Дарницький
Характеристики
| Ціна: | 55 500 $ |
|---|---|
| № об'єкта: | 213-091-176 |
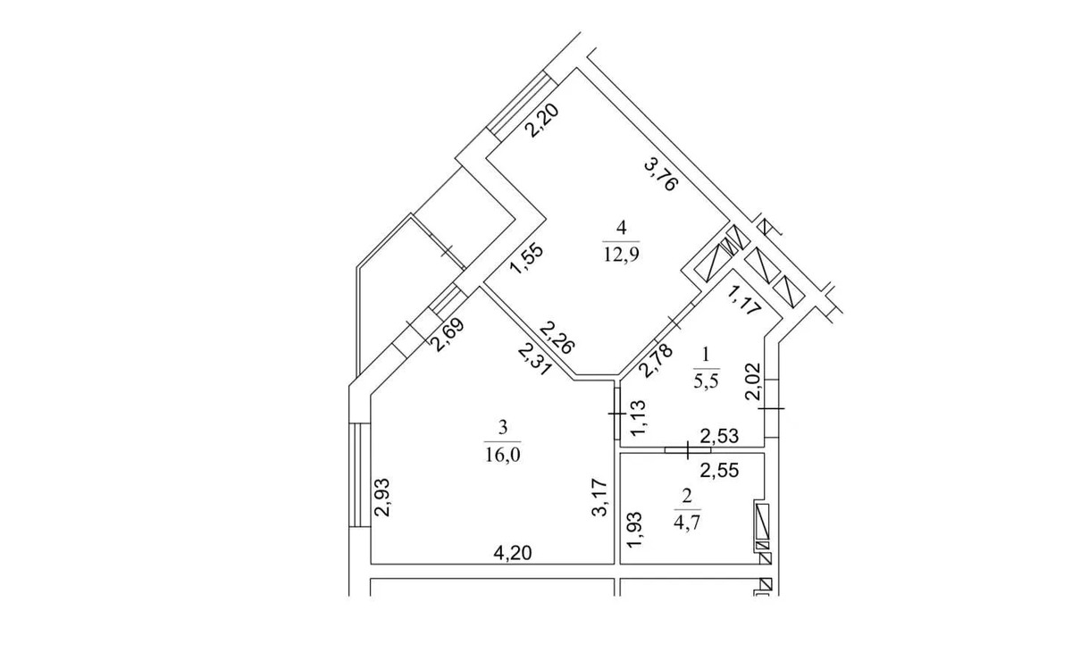
| Кімнат: | 1 розд |
| Поверх: | 5 / 22 |
| Площа: | 42 / - / 12 м2 |
| Санвузол: | сумісний |
| Балкон: | балкон |
Опис
Об'єкт ВС1 № 213-091-176
Пропонуємо на продаж 1 кімнатну квартиру за адресою: вул. Гліба Бабича (Канальна) 8Б, яка розташована на 5 поверсі 22 поверхового будинку.
Будинок цегляний
Раціональне планування. Квартира внутрішня.
Лічильники на все.
Централізоване опалення.
Зручна транспортна розв`язка, що дозволить швидко дістатись у будь-який куточок міста. Вся інфраструктура в пішій доступності.Тихий та затишний двір, зони для відпочинку та паркування.
Агентство нерухомості 'Житломанія'
Працюючи з нами, ви отримуєте перевірене житло від реальних орендодавців, та підтримку на всіх етапах угоди.
Зв'яжіться з нами для організації перегляду та додаткової інформації.
Комісія за послуги 4% за фактом підписання угоди















