Продається квартира Київ, Оболонський, Автозаводська, 72Б, 72Б (№ 213-091-546)

Ціна: 65 000 $
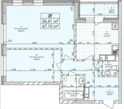
Характеристики
Ціна: | 65 000 $ |
---|---|
№ об'єкта: | 213-091-546 |
Кімнат: | 2 розд |
Поверх: | 17 / 25 ліфт |
Площа: | 67 / 36.6 / 11 м2 |
Санвузол: | 2 роздільний |
Балкон: | балкон |
Додатково: | новобудова |
Адреса: Київ, Оболонський, Автозаводська, 72Б, 72Б
Ю № 213-091-546
Продається чудова 2 кімнатна квартира в Оболонському районі, ЖК Бережанський. За адресою: вул. Автозаводська, 72Б. Квартира на 17 поверсі 25 поверхового будинку. 8 будинок. Будинок ВВЕДЕНИЙ В ЕКСПЛУАТАЦІЮ.
Затишна та світла квартира в престижному районі столиці, що ідеально підходить для комфортного проживання сім'ї.
ДВУСТОРОННЯ – північ, захід – не спекотно літом, та можливо споглядати захід сонця кожного дня.
Виконана якісна машина стяжка стін, заведена електрика, встановлені лычиьники, якісні двері, склопакети WDS.
Розвинена мережа наземного громадського транспорту. Розвинена інфраструктура – магазини, парки, ресторани, аптеки, державні та приватні заклади лікування та освіти.
Якщо Вас зацікавило - телефонуйте і ми Вам організуємо перегляд.
Допоможемо придбати і продати нерухомість.
Агентство нерухомості 'Житломанія'
Працюючи з нами, ви отримуєте перевірене житло від реальних покупців, та підтримку на всіх етапах угоди. Комісія за послуги 4% за фактом підписання угоди.