Продається квартира Київ, Шевченківський, Гоголівська, 29 (№ 213-092-532)

Ціна: 80 000 $
Характеристики
Ціна: | 80 000 $ |
---|---|
№ об'єкта: | 213-092-532 |
Кімнат: | 2 суміж |
Поверх: | 1 / 5 |
Площа: | 44 / - / 8 м2 |
Санвузол: | сумісний |
Балкон: | відсутній |
Адреса: Київ, Шевченківський, Гоголівська, 29
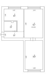
Об'єкт ВС1 № 213-092-532
Пропонуємо на продаж 2 кімнатну квартиру за адресою: вул. Гоголівська 29, яка розташована на 1 поверсі 5 поверхового будинку.
Будинок цегляний
Раціональне планування. Квартира внутрішня.
Лічильники на все.
Централізоване опалення.
Будинок газифікований
Зручна транспортна розв`язка, що дозволить швидко дістатись у будь-який куточок міста. Вся інфраструктура в пішій доступності.Тихий та затишний двір, зони для відпочинку та паркування.
Агентство нерухомості 'Житломанія'
Працюючи з нами, ви отримуєте перевірене житло від реальних орендодавців, та підтримку на всіх етапах угоди.
Зв'яжіться з нами для організації перегляду та додаткової інформації.
Комісія за послуги 4% за фактом підписання угоди