Продається квартира Київ, Оболонський, Коноплянская 22, 22Б (№ 213-093-347)

Ціна: 77 000 $
Характеристики
Ціна: | 77 000 $ |
---|---|
№ об'єкта: | 213-093-347 |
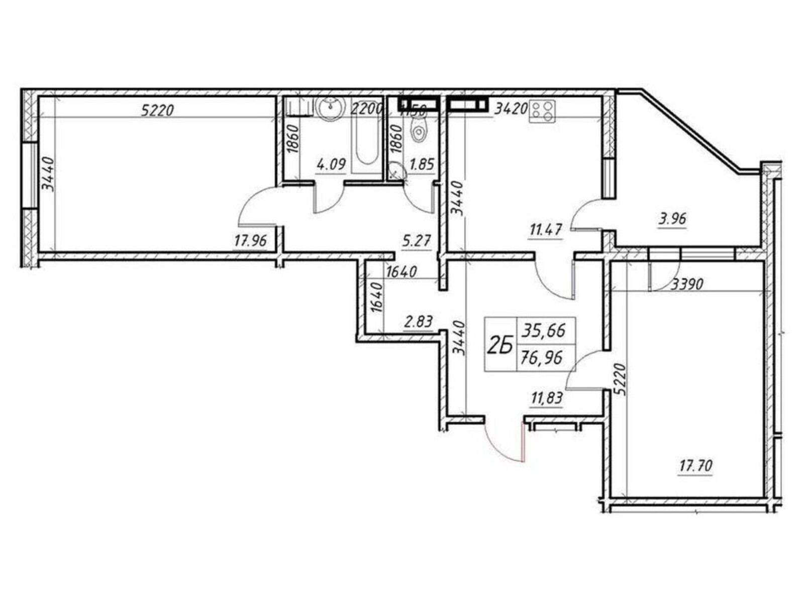
Кімнат: | 2 розд |
Поверх: | 22 / 25 ліфт |
Площа: | 76 / 35.66 / 11.46 м2 |
Санвузол: | 1 роздільний |
Балкон: | лоджія |
Додатково: | новобудова |
Адреса: Київ, Оболонський, Коноплянская 22, 22Б
№ 213-093-347
Продається чудова 2 кімнатна квартира в Оболонському районі, ЖК Навігатор 2. За адресою: вул. Коноплянская 22Б. Квартира на 22 поверсі 25 поверхового будинку.
Затишна та світла квартира в престижному районі столиці, що ідеально підходить для комфортного проживання сім'ї.
З ремонтом від забудовника.
Розвинена мережа наземного громадського транспорту. Розвинена інфраструктура – магазини, парки, ресторани, аптеки, державні та приватні заклади лікування та освіти.
Якщо Вас зацікавило - телефонуйте і ми Вам організуємо перегляд.
Допоможемо придбати і продати нерухомість.
Агентство нерухомості 'Житломанія'
Працюючи з нами, ви отримуєте перевірене житло від реальних покупців, та підтримку на всіх етапах угоди. Комісія за послуги 4% за фактом підписання угоди.