Продається квартира Київ, Голосіївський, Заболотного, 108 (№ 213-093-737)

Ціна: 90 000 $
Характеристики
Ціна: | 90 000 $ |
---|---|
№ об'єкта: | 213-093-737 |
Кімнат: | 3 розд |
Поверх: | 17 / 18 |
Площа: | 85 / - / 9 м2 |
Санвузол: | роздільний |
Балкон: | лоджія |
Адреса: Київ, Голосіївський, Заболотного, 108
Об'єкт ВС1 № 213-093-737
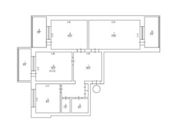
Пропонуємо на продаж 3 кімнатну квартиру за адресою: вул. Заболотного 108, яка розташована на 17 поверсі 18 поверхового будинку.
Будинок цегляний
Раціональне планування. Квартира внутрішня.
Лічильники на все.
Централізоване опалення.
Зручна транспортна розв`язка, що дозволить швидко дістатись у будь-який куточок міста. Вся інфраструктура в пішій доступності.Тихий та затишний двір, зони для відпочинку та паркування.
Агентство нерухомості 'Житломанія'
Працюючи з нами, ви отримуєте перевірене житло від реальних орендодавців, та підтримку на всіх етапах угоди.
Зв'яжіться з нами для організації перегляду та додаткової інформації.
Комісія за послуги 4% за фактом підписання угоди