Продається квартира Київ, Голосіївський, Михайла Дерегуса, 44 (№ 213-093-770)

Ціна: 62 000 $
Характеристики
| Ціна: | 62 000 $ |
|---|---|
| № об'єкта: | 213-093-770 |
| Кімнат: | 1 суміж |
| Поверх: | 4 / 4 |
| Площа: | 28 / - / 5 м2 |
| Санвузол: | сумісний |
| Балкон: | лоджія |
Адреса: Київ, Голосіївський, Михайла Дерегуса, 44
Об'єкт ВС-1 № 213-093-770
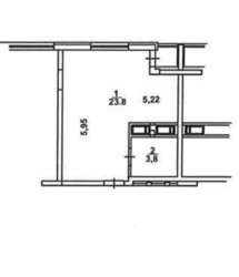
Пропонуємо на продаж 1 кімнатну квартиру за адресою: вул. Михайла Дерегуса 44, яка розташована на 4 поверсі 4 поверхового будинку.
Будинок цегляний
Раціональне планування. Квартира внутрішня.
Лічильники на все.
Централізоване опалення.
Зручна транспортна розв`язка, що дозволить швидко дістатись у будь-який куточок міста. Вся інфраструктура в пішій доступності.Тихий та затишний двір, зони для відпочинку та паркування.
Агентство нерухомості 'Житломанія'
Працюючи з нами, ви отримуєте перевірене житло від реальних орендодавців, та підтримку на всіх етапах угоди.
Зв'яжіться з нами для організації перегляду та додаткової інформації.
Комісія за послуги 4% за фактом підписання угоди




















