Продається квартира Кам'янська, 127, Київ, Дарницький (№ 213-094-750)
Ціна: 61 000 $

Кам'янська, 127, Київ, Дарницький
Характеристики
| Ціна: | 61 000 $ |
|---|---|
| № об'єкта: | 213-094-750 |
| Кімнат: | 2 |
| Поверх: | 8 / 12 |
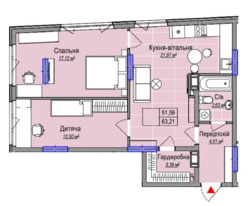
| Площа: | 63 / 30 / 22 м2 |
Опис
Продається простора двокімнатна квартира в Дарницькому районі, за адресою: вул. Кам'янська 127, ЖК МетроПарк. Загальна площа 63 m2, 8 поверх, 12 поверхового будинку.
Стан квартири під чистове оздоблення.
Виконані штукатурні роботи, залита стяжка. Встановлено інсталяцію, виконано сантехнічне розведення труб. Здійснено монтаж комунікацій під кондиціонери.
Чудовий варіант для втілення Ваших мрій , якщо Вас зацікавило - телефонуйте і ми Вам організуємо перегляд.
Допоможемо придбати і продати нерухомість.
Агентство нерухомості 'Житломанія'
Працюючи з нами, ви отримуєте перевірене житло від реальних покупців, та підтримку на всіх етапах угоди.
Комісія за послуги 4% за фактом підписання угоди.










