Продається квартира Київ, Подільський, Петропавлівська, 40 (№ 213-096-547)

Ціна: 51 000 $
Характеристики
Ціна: | 51 000 $ |
---|---|
№ об'єкта: | 213-096-547 |
Кімнат: | 1 |
Поверх: | 14 / 27 ліфт |
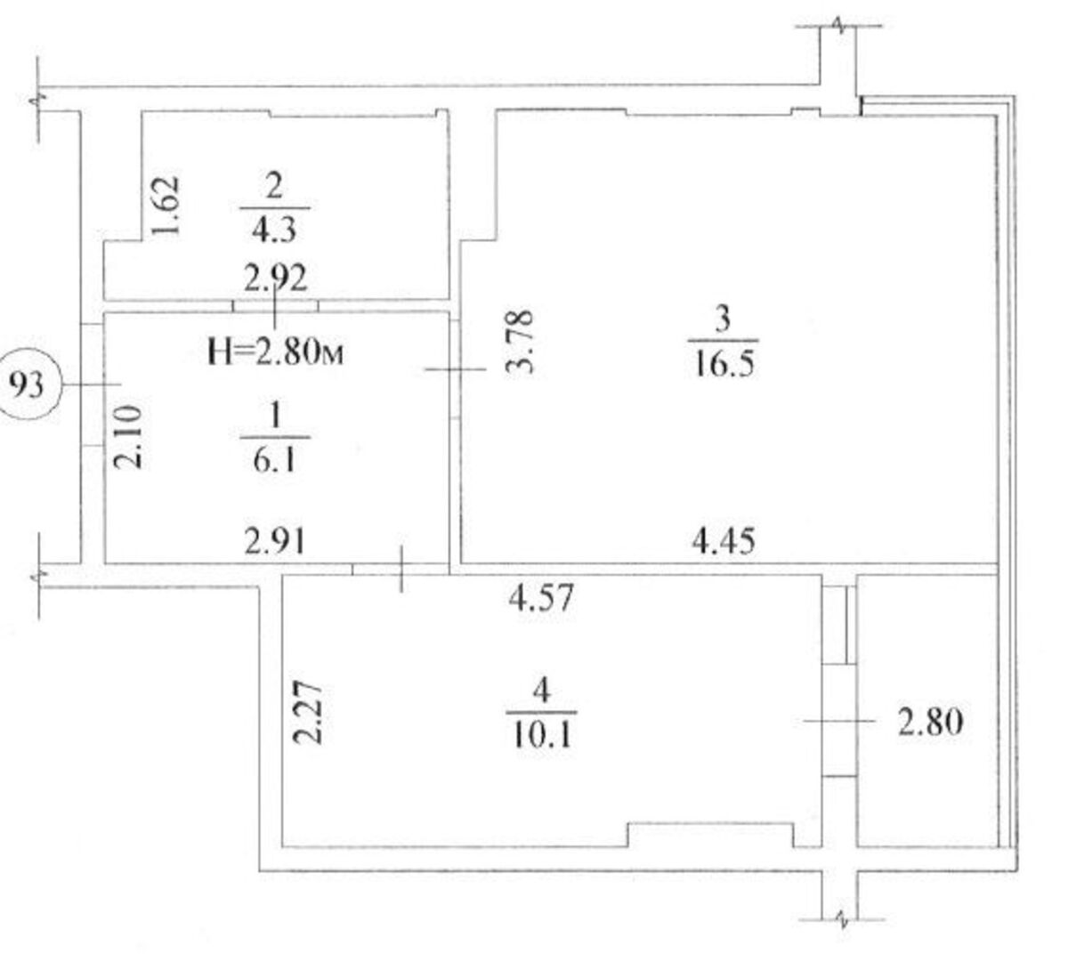
Площа: | 40 / - / 17 м2 |
Адреса: Київ, Подільський, Петропавлівська, 40
СЄ 213-096-547
Продається 1 кім квартира в Подільському районі, в комфортному та безпечному ЖК Науковий, за адресою: вул. Петропавлівська 40. Загальна площа 40 m2, 14 поверх, 27 поверхового будинку.
В квартирі зроблене перепланування, узгоджено та перероблено технічний паспорт, зроблені усі 'чорнові' роботи, готова під чистовий ремонт: лазерна стяжка, розведено чорнову сантехніку із ввідним ревізійним щитком, кранами та фільтрами, розведено х електрокабель без використання розподільчих коробок із запасом, встановлено два якісних електрощита (електричний та слаботочка); встановлені якісні брендові автоматы, прилади захисного відімкнення (ПЗВ) та реле напруги - 'Зубр', встановлено 4 радіатора Vogel&Noot, с термоклапанами.
Усі стіни та стеля оштукатурені (с/в в тому числі - цементо піщаною штукатуркою).
В квартирі зроблено перепланування зі збільшенням кухні з 8 метрів до кухні-студії у розмірі 17 м. кв., та затишна кімната з балконом у вигляді відокремленого робочого місця.
Розвинена мережа наземного громадського транспорту. Розвинена інфраструктура – магазини, парки, ресторани, аптеки, державні та приватні заклади лікування та освіти.
Якщо Вас зацікавило - телефонуйте і ми Вам організуємо перегляд.
Допоможемо придбати і продати нерухомість.
Агентство нерухомості 'Житломанія'
Працюючи з нами, ви отримуєте перевірене житло від реальних покупців, та підтримку на всіх етапах угоди.Комісія за послуги 4% за фактом підписання угоди.