Продається квартира Приміська 24, Київ, Голосіївський (№ 213-096-572)
Ціна: 69 000 $

Приміська 24, Київ, Голосіївський
Характеристики
| Ціна: | 69 000 $ |
|---|---|
| № об'єкта: | 213-096-572 |
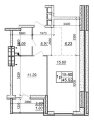
| Кімнат: | 2 |
| Поверх: | 25 / 25 |
| Площа: | 46 / - / 11 м2 |
Опис
ЛМ 213-096-572 Продається чудова 2-кімнатна квартира в комфортному та безпечному ЖК Одеський бульвар, за адресою: вул.Приміська 24. Загальна площа 46 m2, 25 поверх, 25 поверхового будинку
Затишна та світла квартира, що ідеально підходить для комфортного проживання.
Розвинена мережа громадського транспорту та інфраструктура.
Телефонуйте і ми організуємо для вас перегляд.
Допоможемо придбати і продати нерухомість.
АН 'Житломанія'
Працюючи з нами, ви отримуєте перевірене житло від реальних продавців, та підтримку на всіх етапах угоди. Комісія за послуги 4% за фактом підписання угоди.



















