Продається квартира Київ, Святошинський, бульвар Жуль Верна, 13, 13 (№ 213-100-122)

Ціна: 85 000 $
Характеристики
Ціна: | 85 000 $ |
---|---|
№ об'єкта: | 213-100-122 |
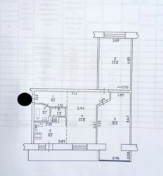
Кімнат: | 3 розд |
Поверх: | 7 / 9 ліфт |
Площа: | 65 / 47 / 7 м2 |
Санвузол: | 1 роздільний |
Балкон: | лоджія |
Адреса: Київ, Святошинський, бульвар Жуль Верна, 13, 13
Об'єкт № 213-100-122
Продається чудова 3 кімнатна -квартира в Святошинському районі, за адресою: бульвар Жуль Верна, 13 (Ромена Роллана), Борщагівка,
Загальна площа 65 m2; 7 поверх, 9 поверхового будинку .
Затишна та світла квартира в престижному районі столиці, що ідеально підходить для комфортного проживання сім'ї
Ідеальний варіант для сім’ї!
Простора квартира з якісним ремонтом, де залишається майже все – можна одразу заїхати та жити.
Будинок:
- Чеський проєкт, 1971 рік.
- Поверх 7/9, є ліфт.
- Доглянутий двір, приємні сусіди.
Квартира:
- Двостороннє планування – дві окремі кімнати + кухня-вітальня.
- Роздільний санвузол.
- Великий засклений балкон та робоча зона у кімнаті.
Ремонт на роки:
- Заміна всіх комунікацій: мідна електропроводка, нові труби, стабілізатор напруги, заземлення.
- Тепла підлога (кухня, дитяча), нові радіатори, зовнішнє та внутрішнє утеплення.
- Металопластикові вікна (три скла), броньовані двері.
- Вбудовані меблі та сучасна техніка: варильна поверхня, духова шафа, посудомийка, пральна машина, бойлер, кондиціонер.
Паркомісце у дворі – завжди є де поставити авто.
- Окрема комора на поверсі – зручне місце для зберігання.
- Чистий продаж – всі документи готові, без зайвих витрат.
Розвинена мережа наземного громадського транспорту. Розвинена інфраструктура – магазини, парки, ресторани, аптеки, державні та приватні заклади лікування та освіти.
Якщо Вас зацікавило - телефонуйте і ми Вам організуємо перегляд.
Допоможемо придбати і продати нерухомість.
Агентство нерухомості 'Житломанія'
Працюючи з нами, ви отримуєте перевірене житло від реальних продавців та підтримку на всіх етапах угоди. Комісія. за послуги 4% за фактом підписання угоди.