Продається квартира Київ, Подільський, Олеся дом, 8/17 (№ 213-101-405)

Ціна: 59 000 $
Характеристики
Ціна: | 59 000 $ |
---|---|
№ об'єкта: | 213-101-405 |
Кімнат: | 2 |
Поверх: | 22 / 25 ліфт |
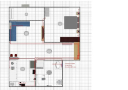
Площа: | 46 / 13.1 / 17.8 м2 |
Санвузол: | 1 сумісний |
Балкон: | балкон |
Додатково: | новобудова |
Адреса: Київ, Подільський, Олеся дом, 8/17
Ю № 213-101-405
Продається чудова 2 кімнатна квартира в Подільському районі, ЖК ,,Варшавский Плюс'. За адресою: вул. Олеся дом 8/17. Квартира на 22 поверсі 25 поверхового будинку.
Дом здан, права собственности 2023г( налоги 50/50).
Є генератор на будинок. Вікна в двір.
Було розпочато ремонт, саме- повністю зроблено електрика( як у проекті),
по сантехніці виведені всі труби (оскільки на проекті) стоїть інсталяція, є фільтри для повного очищення води (їх залишилося тільки встановити),
встановлені лічильники на яких стоїть система проти затоплення.
У кімнаті замість вікна мур, вхід на балкон тільки через кухню.
Затишна та світла квартира в престижному районі столиці, що ідеально підходить для комфортного проживання сім'ї.
Тільки готівка.
Розвинена мережа наземного громадського транспорту. Розвинена інфраструктура – магазини, парки, ресторани, аптеки, державні та приватні заклади лікування та освіти.
Якщо Вас зацікавило - телефонуйте і ми Вам організуємо перегляд.
Допоможемо придбати і продати нерухомість.
Агентство нерухомості 'Житломанія'
Працюючи з нами, ви отримуєте перевірене житло від реальних покупців, та підтримку на всіх етапах угоди. Комісія за послуги 4% за фактом підписання угоди.