Продається квартира Радунська, 5, Київ (№ 213-101-695)
Ціна: 45 000 $

Радунська, 5, Київ
Характеристики
| Ціна: | 45 000 $ |
|---|---|
| № об'єкта: | 213-101-695 |
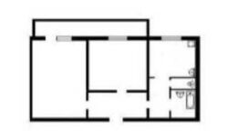
| Кімнат: | 2 |
| Поверх: | 2 / 10 |
| Площа: | 52 / 30 / 8 м2 |
Опис
Об'єкт № 213-101-695
Продається простора 2 кімнатна квартира в Даснянському районі, за адресою: вул. Радунська 5. Квартира на 2 поверсі 10 поверхового будинку.
Затишна та тепла квартира з ремонтом, що ідеально підходить для проживання або під орендний бізнес.
Стан житловий.
Розвинена мережа наземного громадського транспорту. Розвинена інфраструктура – магазини, парки, ресторани, аптеки, державні та приватні заклади лікування та освіти.
Якщо Вас зацікавило - телефонуйте і ми Вам організуємо перегляд.
Допоможемо придбати і продати нерухомість.
Агентство нерухомості 'Житломанія'
Працюючи з нами, ви отримуєте перевірене житло від реальних покупців, та підтримку на всіх етапах угоди.
Комісія за послуги 4% за фактом підписання угоди.















