Продається квартира Київ, Дніпровський, просп Каденюка, 20 (№ 213-102-803)

Ціна: 37 000 $
Характеристики
| Ціна: | 37 000 $ |
|---|---|
| № об'єкта: | 213-102-803 |
| Кімнат: | 1 |
| Поверх: | 3 / 5 |
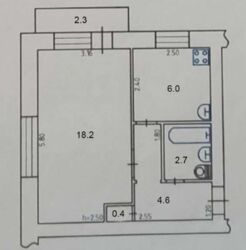
| Площа: | 34 / - / 6 м2 |
Адреса: Київ, Дніпровський, просп Каденюка, 20
ЛМ 213-102-803 Продається чудова 1-кімнатна квартира за адресою: просп Каденюка, 20. Загальна площа 34 m2, 3 поверх, 5 поверхового будинку
Затишна та світла квартира, що ідеально підходить для комфортного проживання.
Розвинена мережа громадського транспорту та інфраструктура.
Телефонуйте і ми організуємо для вас перегляд.
Допоможемо придбати і продати нерухомість.
АН 'Житломанія'
Працюючи з нами, ви отримуєте перевірене житло від реальних продавців, та підтримку на всіх етапах угоди. Комісія за послуги 4% за фактом підписання угоди.















