Продається квартира Бульвар Верховної Ради, 21А, Київ, Дніпровський (№ 213-111-417)
Ціна: 70 000 $

Бульвар Верховної Ради, 21А, Київ, Дніпровський
Характеристики
| Ціна: | 70 000 $ |
|---|---|
| № об'єкта: | 213-111-417 |
| Кімнат: | 1 розд |
| Поверх: | 13 / 16 |
| Площа: | 52 / - / 14 м2 |
| Санвузол: | сумісний |
| Балкон: | балкон |
Опис
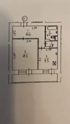
Об'єкт ВС-1 № 213-111-417
Пропонуємо на продаж 1 кімнатну квартиру за адресою: бульвар Верховної Ради 21А, яка розташована на 13 поверсі 16 поверхового будинку.
Будинок цегляний
Раціональне планування. Квартира внутрішня.
Лічильники на все.
Централізоване опалення.
Зручна транспортна розв`язка, що дозволить швидко дістатись у будь-який куточок міста. Вся інфраструктура в пішій доступності.Тихий та затишний двір, зони для відпочинку та паркування.
Агентство нерухомості 'Житломанія'
Працюючи з нами, ви отримуєте перевірене житло від реальних орендодавців, та підтримку на всіх етапах угоди.
Зв'яжіться з нами для організації перегляду та додаткової інформації.
Комісія за послуги 4% за фактом підписання угоди
















