Продається квартира Київ, Шевченківський, Гоголівська, 29 (№ 213-113-216)

Ціна: 75 000 $
Характеристики
Ціна: | 75 000 $ |
---|---|
№ об'єкта: | 213-113-216 |
Кімнат: | 2 розд |
Поверх: | 1 / 5 |
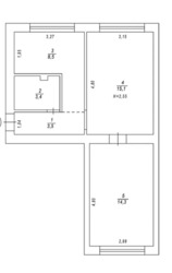
Площа: | 44 / 22 / 8 м2 |
Санвузол: | 1 сумісний |
Адреса: Київ, Шевченківський, Гоголівська, 29
Об'єкт № 213-113-216
Продається чудова 2 кімнатна квартира в Шевченківському районі, за адресою: вул. Гоголівська,29
Загальна площа 44 m2; 1 поверх, 5 поверхового будинку.
Затишна та світла квартира в престижному районі столиці, що ідеально підходить для комфортного проживання сім'ї
квартира в затишному теплому цегляному будинку на першому поверсі .
Загальною площею 44.8 кв м . Висота стелі в квартирі - 2.55 м.
Центральна частина міста. Поруч парк та ліцей.
Квартира використовувалась, як творча майстерня, тому кухнею та сан. вузолом майже не користувались. Квартира в дуже гарному стані , тихе охайне подвірʼя , охайний підʼїзд .
Ідеально підійде під офіс або для сімʼї з маленькими активними дітками .
Бонусом до квартири іде підвальне приміщення ( комора в підвалі) , закріплене за квартирою , розміром 1,6 м. ( ширина) х 3,2м. ( довжина) х 3,2м. (висота стелі).
Розвинена мережа наземного громадського транспорту. Розвинена інфраструктура – магазини, парки, ресторани, аптеки, державні та приватні заклади лікування та освіти.
Якщо Вас зацікавило - телефонуйте і ми Вам організуємо перегляд.
Допоможемо придбати і продати нерухомість.
Агентство нерухомості 'Житломанія'
Працюючи з нами, ви отримуєте перевірене житло від реальних продавців та підтримку на всіх етапах угоди. Комісія. за послуги 4% за фактом підписання угоди.