Продається квартира Київ, Солом'янський, Ушинського, 14А (№ 213-115-214)

Ціна: 59 000 $
Характеристики
Ціна: | 59 000 $ |
---|---|
№ об'єкта: | 213-115-214 |
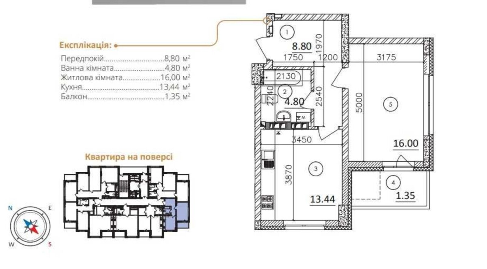
Кімнат: | 1 |
Поверх: | 15 / 19 ліфт |
Площа: | 44 / 16 / 13.44 м2 |
Санвузол: | 1 сумісний |
Балкон: | балкон |
Адреса: Київ, Солом'янський, Ушинського, 14А
Ю № 213-115-214
Продається чудова 1 кімнатна квартира в Солом'янському районі, ЖК KARAWAY Tower. За адресою: вул. Ушинського 14а. Квартира на 15 поверсі 19 поверхового будинку.
Будинок введений в експлуатацію в 2019 році. З квартири відкривається гарний краєвид на Київ. Встановлені і опломбовані лічильники на тепло, воду, світло, все з прямим договорами (всі лічильники в технологічних шафах в спільному коридорі). Будинок побудований по монолітно-каркасній технології і утеплений мінеральною ватою. Є балкон. В будинку є консьєрж та відеспостереження. Присутній підземний паркінг в який опускається ліфт прямо з поверхів, можна використовувати як укриття.
Затишна та світла квартира в престижному районі столиці, що ідеально підходить для комфортного проживання сім'ї.
Розвинена мережа наземного громадського транспорту. Розвинена інфраструктура – магазини, парки, ресторани, аптеки, державні та приватні заклади лікування та освіти.
Якщо Вас зацікавило - телефонуйте і ми Вам організуємо перегляд.
Допоможемо придбати і продати нерухомість.
Агентство нерухомості 'Житломанія'
Працюючи з нами, ви отримуєте перевірене житло від реальних покупців, та підтримку на всіх етапах угоди. Комісія за послуги 4% за фактом підписання угоди.