Продається квартира Коноплянська, 22Б, Київ, Оболонський (№ 213-115-907)
Ціна: 60 000 $

Коноплянська, 22Б, Київ, Оболонський
Характеристики
| Ціна: | 60 000 $ |
|---|---|
| № об'єкта: | 213-115-907 |
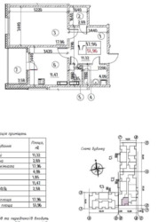
| Кімнат: | 1 розд |
| Поверх: | 9 / 25 |
| Площа: | 52 / 18 / 11.5 м2 |
| Санвузол: | роздільний |
| Балкон: | лоджія |
Опис
Об'єкт ВС1 № 213-115-907
Пропонуємо на продаж 1 кімнатну квартиру за адресою: вул. Коноплянська 22Б, яка розташована на 9 поверсі 25 поверхового будинку.
Будинок цегляний
Раціональне планування. Квартира внутрішня.
Лічильники на все.
Централізоване опалення.
Зручна транспортна розв`язка, що дозволить швидко дістатись у будь-який куточок міста. Вся інфраструктура в пішій доступності.Тихий та затишний двір, зони для відпочинку та паркування.
Агентство нерухомості 'Житломанія'
Працюючи з нами, ви отримуєте перевірене житло від реальних орендодавців, та підтримку на всіх етапах угоди.
Зв'яжіться з нами для організації перегляду та додаткової інформації.
Комісія за послуги 4% за фактом підписання угоди















