Продається квартира Київ, Дарницький, Бориса Антоненка-Давидовича, 1 (№ 213-119-768)

Ціна: 69 000 $
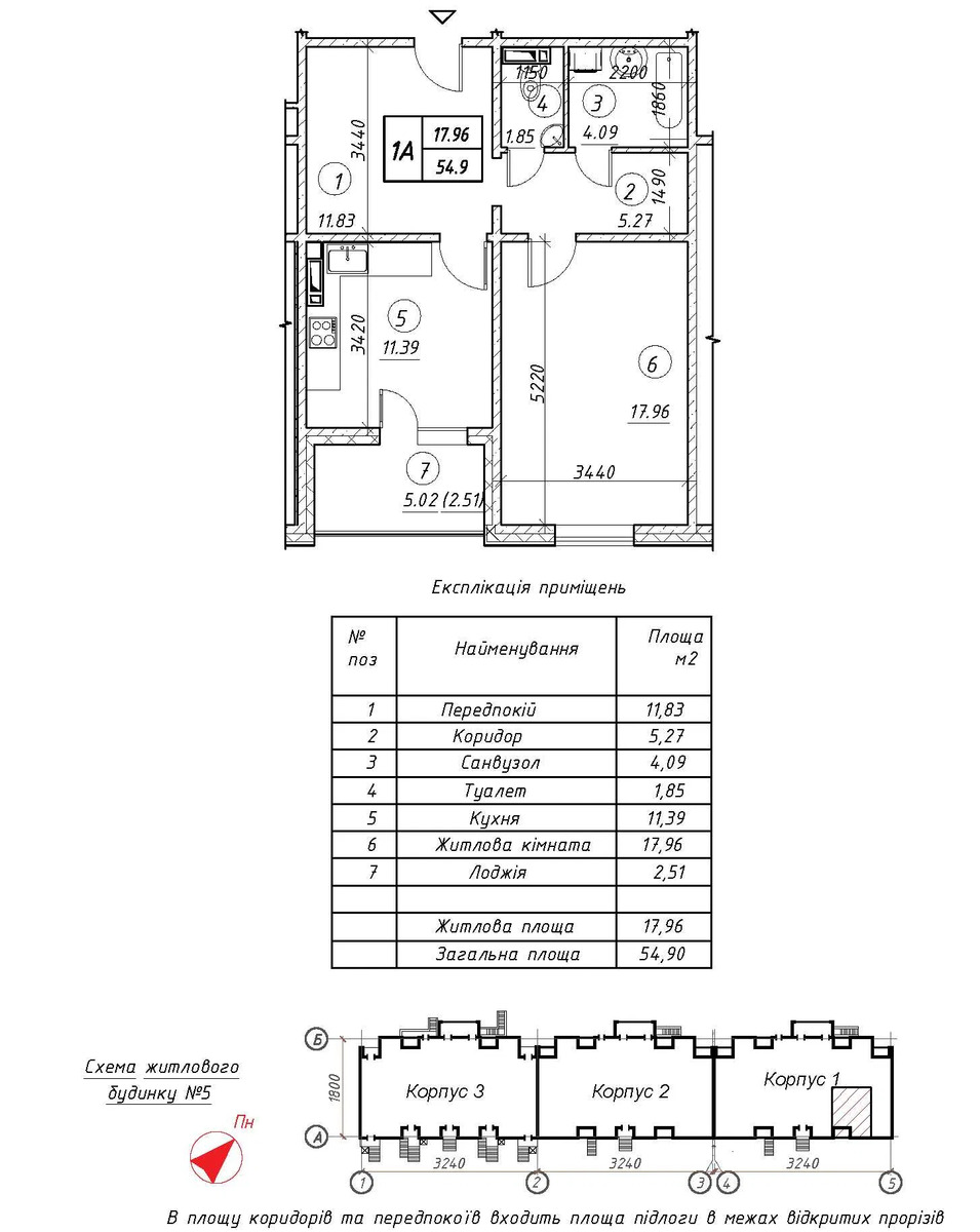
Характеристики
Ціна: | 69 000 $ |
---|---|
№ об'єкта: | 213-119-768 |
Кімнат: | 1 розд |
Поверх: | 4 / 25 |
Площа: | 55 / - / 12 м2 |
Санвузол: | роздільний |
Балкон: | балкон |
Адреса: Київ, Дарницький, Бориса Антоненка-Давидовича, 1
Об'єкт ВС1 № 213-119-768
Пропонуємо на продаж 1 кімнатну квартиру за адресою: вул. Бориса Антоненка-Давидовича 1, яка розташована на 4 поверсі 25 поверхового будинку.
Будинок цегляний
Раціональне планування. Квартира внутрішня.
Лічильники на все.
Централізоване опалення.
Зручна транспортна розв`язка, що дозволить швидко дістатись у будь-який куточок міста. Вся інфраструктура в пішій доступності.Тихий та затишний двір, зони для відпочинку та паркування.
Агентство нерухомості 'Житломанія'
Працюючи з нами, ви отримуєте перевірене житло від реальних орендодавців, та підтримку на всіх етапах угоди.
Зв'яжіться з нами для організації перегляду та додаткової інформації.
Комісія за послуги 4% за фактом підписання угоди