Продається квартира Київ, Дніпровський, Сосюри, 6 (№ 213-120-057)

Ціна: 56 000 $
Характеристики
| Ціна: | 56 000 $ |
|---|---|
| № об'єкта: | 213-120-057 |
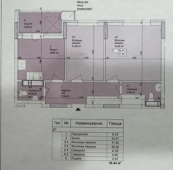
| Кімнат: | 2 розд |
| Поверх: | 24 / 26 |
| Площа: | 57 / - / 12 м2 |
| Санвузол: | роздільний |
| Балкон: | лоджія |
Адреса: Київ, Дніпровський, Сосюри, 6
Об'єкт ВС1 № 213-120-057
Пропонуємо на продаж 2 кімнатну квартиру за адресою: вул. Сосюри 6, яка розташована на 24 поверсі 26 поверхового будинку.
Будинок цегляний
Раціональне планування. Квартира внутрішня.
Лічильники на все.
Централізоване опалення
Зручна транспортна розв`язка, що дозволить швидко дістатись у будь-який куточок міста. Вся інфраструктура в пішій доступності.Тихий та затишний двір, зони для відпочинку та паркування.
Агентство нерухомості 'Житломанія'
Працюючи з нами, ви отримуєте перевірене житло від реальних орендодавців, та підтримку на всіх етапах угоди.
Зв'яжіться з нами для організації перегляду та додаткової інформації.
Комісія за послуги 4% за фактом підписання угоди







