Продається квартира Загорівська, 25, Київ, Шевченківський (№ 213-120-479)
Ціна: 95 000 $

Загорівська, 25, Київ, Шевченківський
Характеристики
| Ціна: | 95 000 $ |
|---|---|
| № об'єкта: | 213-120-479 |
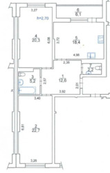
| Кімнат: | 2 розд |
| Поверх: | 21 / 24 |
| Площа: | 87 / 43 / 18 м2 |
| Санвузол: | 2 |
| Балкон: | лоджія |
Опис
Об'єкт ВС1 № 213-120-479
Пропонуємо на продаж 2 кімнатну квартиру за адресою: вул. Загорівська 25, яка розташована на 21 поверсі 24 поверхового будинку.
Будинок цегляний
Раціональне планування. Квартира внутрішня.
Лічильники на все.
Централізоване опалення.
Зручна транспортна розв`язка, що дозволить швидко дістатись у будь-який куточок міста. Вся інфраструктура в пішій доступності.Тихий та затишний двір, зони для відпочинку та паркування.
Агентство нерухомості 'Житломанія'
Працюючи з нами, ви отримуєте перевірене житло від реальних орендодавців, та підтримку на всіх етапах угоди.
Зв'яжіться з нами для організації перегляду та додаткової інформації.
Комісія за послуги 4% за фактом підписання угоди











