Продається квартира Київ, Дарницький, Дніпровська Набережна, 17В (№ 213-123-409)

Ціна: 120 000 $
Характеристики
| Ціна: | 120 000 $ |
|---|---|
| № об'єкта: | 213-123-409 |
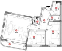
| Кімнат: | 2 |
| Поверх: | 5 / 28 ліфт |
| Площа: | 89 / - / 33 м2 |
| Санвузол: | 1 сумісний |
| Балкон: | балкон |
Адреса: Київ, Дарницький, Дніпровська Набережна, 17В
СЄ 213-123-409
Продається 2 кім квартира в Дарницькому районі, в комфортному та безпечному ЖК Берег Дніпра, за адресою: вул. Дніпровська Набережна 17В. Загальна площа 89 m2, 5 поверх, 28 поверхового будинку. Об’єкт введено в експлуатацію.
Переуступка.
Квартира потребує ремонту, стан після будівельників, в спальному районі столиці, що ідеально підходить для комфортного проживання.
Розвинена мережа наземного громадського транспорту. Розвинена інфраструктура – магазини, парки, ресторани, аптеки, державні та приватні заклади лікування та освіти.
Якщо Вас зацікавило - телефонуйте і ми Вам організуємо перегляд.
Допоможемо придбати і продати нерухомість.
Агентство нерухомості 'Житломанія'
Працюючи з нами, ви отримуєте перевірене житло від реальних покупців, та підтримку на всіх етапах угоди.Комісія за послуги 4% за фактом підписання угоди.





















