Продається квартира Київ, Голосіївський (№ 213-124-030)

Ціна: 59 000 $
Характеристики
Ціна: | 59 000 $ |
---|---|
№ об'єкта: | 213-124-030 |
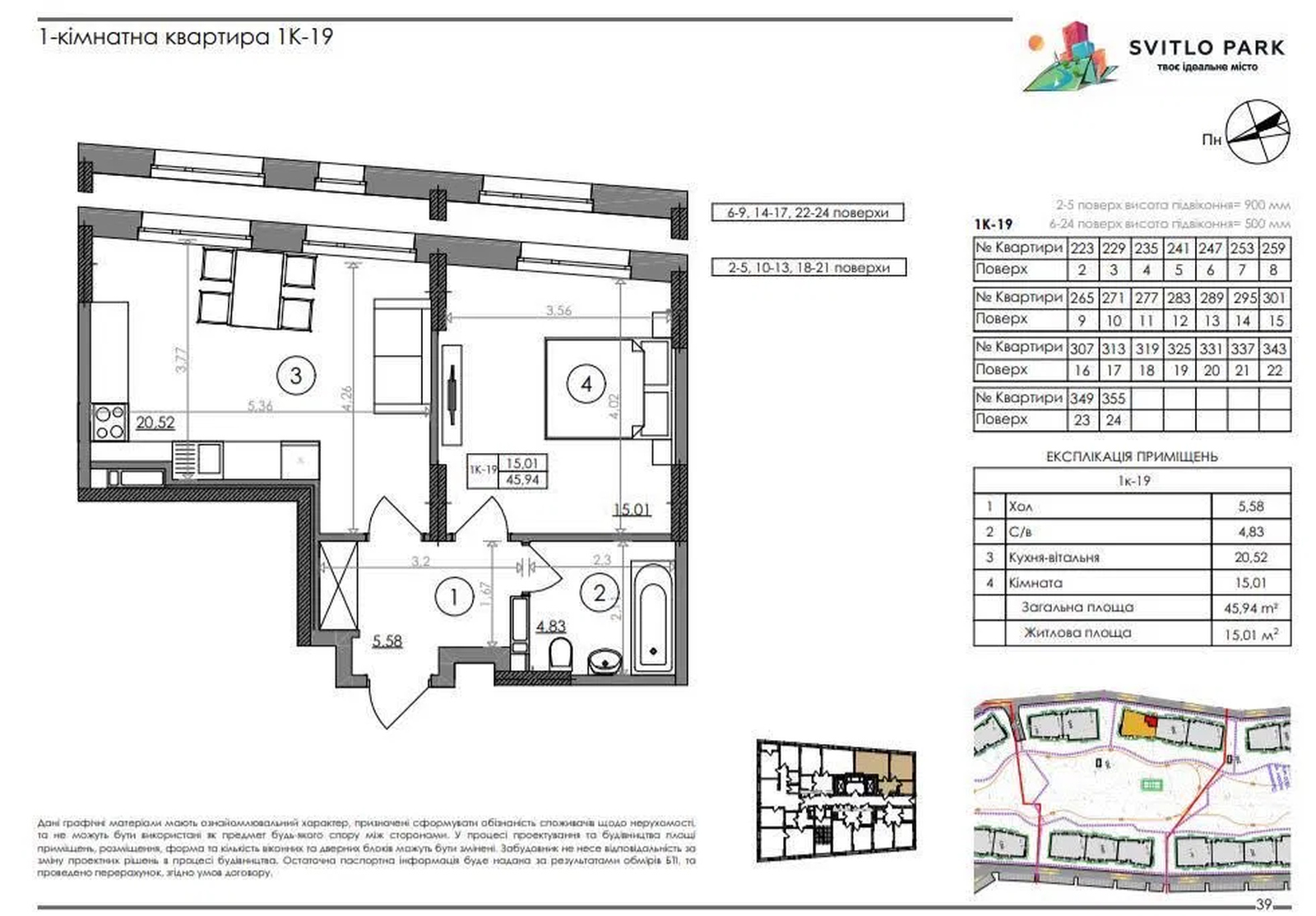
Кімнат: | 1 |
Поверх: | 20 / 24 ліфт |
Площа: | 46 / 15 / 20 м2 |
Санвузол: | 1 сумісний |
Додатково: | новобудова |
Адреса: Київ, Голосіївський
Ю № 213-124-030
Продається чудова 1 кімнатна квартира в Гголосіївському районі, ЖК Svitlo Park. За адресою: Будинок прийнятий, документи обіцяють через 1,5 міс
квартира в 6 будинку. Квартира на 20 поверсі 24 поверхового будинку.
Перепоступка!
Затишна та світла квартира в престижному районі столиці, що ідеально підходить для комфортного проживання сім'ї.
Розвинена мережа наземного громадського транспорту. Розвинена інфраструктура – магазини, парки, ресторани, аптеки, державні та приватні заклади лікування та освіти.
Якщо Вас зацікавило - телефонуйте і ми Вам організуємо перегляд.
Допоможемо придбати і продати нерухомість.
Агентство нерухомості 'Житломанія'
Працюючи з нами, ви отримуєте перевірене житло від реальних покупців, та підтримку на всіх етапах угоди. Комісія за послуги 4% за фактом підписання угоди.