Продається квартира Київ, Дарницький, Дніпровська набережна, 15Є (№ 213-125-685)

Ціна: 89 000 $
Характеристики
Ціна: | 89 000 $ |
---|---|
№ об'єкта: | 213-125-685 |
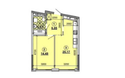
Кімнат: | 1 розд |
Поверх: | 17 / 26 |
Площа: | 48 / - / 21 м2 |
Санвузол: | сумісний |
Адреса: Київ, Дарницький, Дніпровська набережна, 15Є
Об'єкт ВС1 № 213-125-685
Пропонуємо на продаж 1 кімнатну квартиру за адресою: вул. Дніпровська набережна 15Є, яка розташована на 17 поверсі 26 поверхового будинку.
Будинок цегляний
Раціональне планування. Квартира внутрішня.
Лічильники на все.
Централізоване опалення.
Зручна транспортна розв`язка, що дозволить швидко дістатись у будь-який куточок міста. Вся інфраструктура в пішій доступності.Тихий та затишний двір, зони для відпочинку та паркування.
Агентство нерухомості 'Житломанія'
Працюючи з нами, ви отримуєте перевірене житло від реальних орендодавців, та підтримку на всіх етапах угоди.
Зв'яжіться з нами для організації перегляду та додаткової інформації.
Комісія за послуги 4% за фактом підписання угоди