Продається квартира Київ, Подільський, Сергія Данченка, 28Б (№ 213-127-709)

Ціна: 112 000 $
Характеристики
| Ціна: | 112 000 $ |
|---|---|
| № об'єкта: | 213-127-709 |
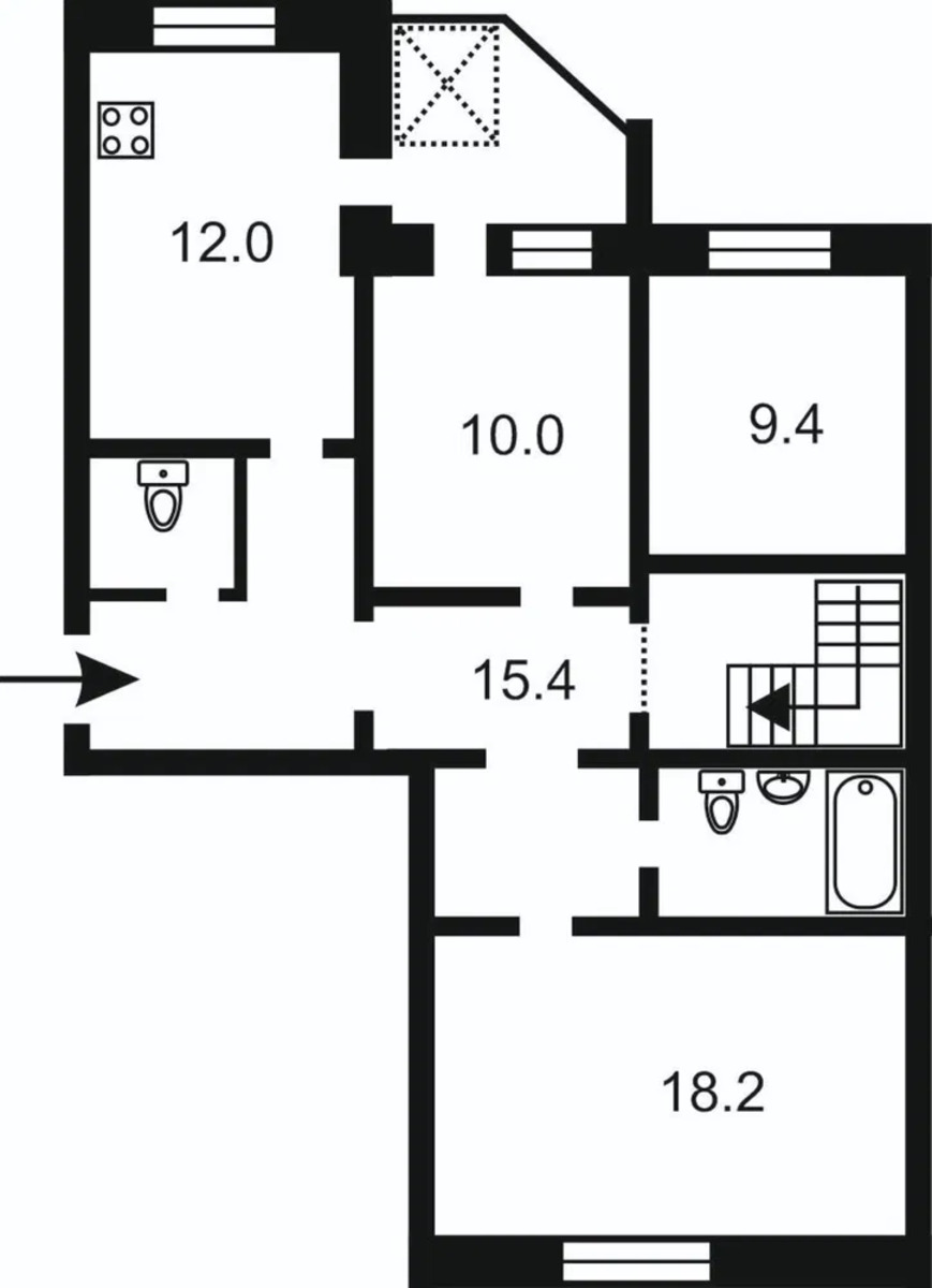
| Кімнат: | 4 |
| Поверх: | 9 / 15 ліфт |
| Площа: | 133 / 65 / 22 м2 |
| Санвузол: | 3+ роздільний |
Адреса: Київ, Подільський, Сергія Данченка, 28Б
СЄ 213-127-709
Продається 4 кім квартира в Подільському районі, в комфортному та безпечному ЖК Новомостицько - Замковецький , за адресою: вул. Сергія Данченка 28Б. Загальна площа 133 m2, 9 поверх, 15 поверхового будинку.
Квартира в спальному районі столиці, що ідеально підходить для комфортного проживання, потребує ремонту, стан після будівельників.
В ЖК є паркінг та місяця для наземного паркування.
Розвинена мережа наземного громадського транспорту. Розвинена інфраструктура – магазини, парки, ресторани, аптеки, державні та приватні заклади лікування та освіти.
Якщо Вас зацікавило - телефонуйте і ми Вам організуємо перегляд.
Допоможемо придбати і продати нерухомість.
Агентство нерухомості 'Житломанія'
Працюючи з нами, ви отримуєте перевірене житло від реальних покупців, та підтримку на всіх етапах угоди.Комісія за послуги 4% за фактом підписання угоди.



















